Middelharnis – Doetinchemsestraat 41
3241 AA, Middelharnis
€ 345.000,- k.k.
WoonhuisOmschrijving
Gelegen in een gezellige woonwijk mogen we je deze leuke tussenwoning aanbieden. De ruime woning is voorzien van vier slaapkamers en een ruime zolder. De achtertuin is gelegen op het oosten. Interesse in deze woning? Neem contact met ons op! INDELING Begane grond: De entreehal, met toilet, trapopgang en twee...
Gelegen in een gezellige woonwijk mogen we je deze leuke tussenwoning aanbieden. De ruime woning is voorzien van vier slaapkamers en een ruime zolder. De achtertuin is gelegen op het oosten. Interesse in deze woning? Neem contact met ons op!
INDELING
Begane grond:
De entreehal, met toilet, trapopgang en twee vaste kasten, geeft toegang tot de woon-/eetkamer en de keuken. De gezellige woon-/eetkamer is voorzien van een laminaatvloer. De grote raampartijen aan de voor- en achterzijde zorgen voor veel natuurlijke lichtinval. Vanuit de entreehal is de keuken bereikbaar. De keuken, met plavuizen vloer, is voorzien van opbergruimte en diverse apparatuur: kookplaat, afzuigkap, vaatwasser en boiler. Tegenover de keuken is een werkblad met daaronder de witgoedaansluitingen. Vanuit de keuken heb je toegang tot de achtertuin.
Eerste verdieping:
De overloop, met trapopgang en enkele vaste kasten, geeft toegang tot de vier slaapkamers en de badkamer. De slaapkamers zijn voorzien van een laminaatvloer. De ramen zorgen voor veel lichtinval. De slaapkamers aan de voorzijde zijn beide voorzien van een vaste kast. De geheel betegelde badkamer is voorzien van een douche, een wastafel, een toilet en een designradiator.
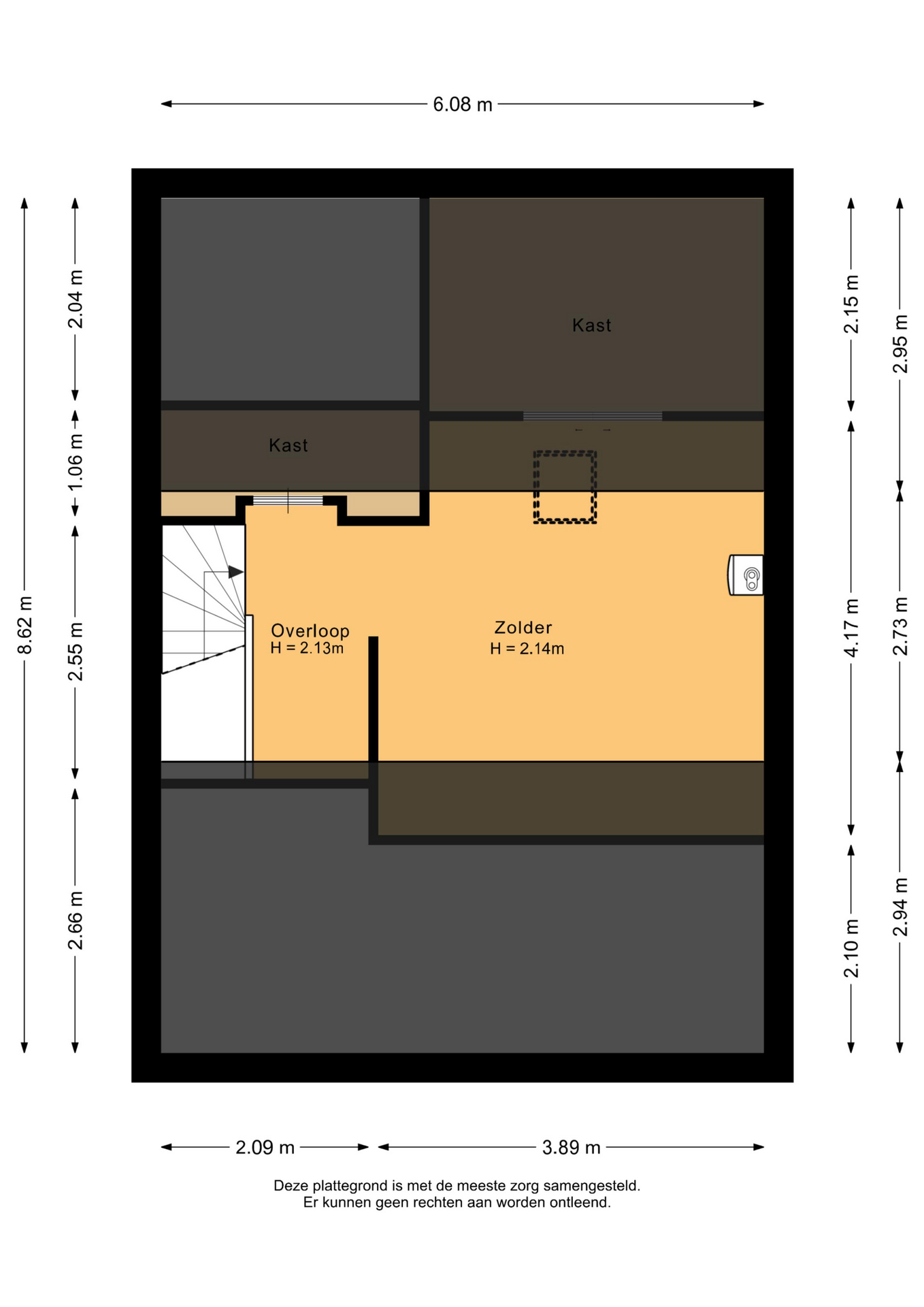
Zolder:
De zolder is met een vaste trap bereikbaar. De overloop geeft toegang tot een vaste kast en de zolder. De ruime zolder is voorzien van een dakraam, de CV-ketel en veel kastruimte onder het schuine dak. Het is hier eventueel mogelijk een vijfde slaapkamer te creëren.
Tuin:
De achtertuin is gelegen op het oosten. De tuin is voorzien van bestrating en borders met planten en struiken. Het is hier heerlijk vertoeven. Achter in de tuin staat een stenen berging. Links van de berging is een poort die toegang geeft tot het achtergelegen pad.
Bijzonderheden:
– Oplevering: december 2025
– Vier slaapkamers
– Ruime zolder met de mogelijkheid tot het creëren van een vijfde slaapkamer
– 9 zonnepanelen
– Gelegen in een gezellige woonwijk


