Sommelsdijk – Oostdijk 19
3245 AS, Sommelsdijk
€ 550.000,- k.k.
WoonhuisOmschrijving
In een gezellige buurt in Sommelsdijk mogen we u deze unieke, zeer royale woning met garage aanbieden. De dijkwoning, in vroeger tijden de "Luxe Bakkerij", is aan de achterzijde aan het water gelegen en is voorzien van een ruime woonkamer en keuken, vier slaapkamers en een heerlijk dakterras. Nieuwsgierig naar...
In een gezellige buurt in Sommelsdijk mogen we u deze unieke, zeer royale woning met garage aanbieden. De dijkwoning, in vroeger tijden de “Luxe Bakkerij”, is aan de achterzijde aan het water gelegen en is voorzien van een ruime woonkamer en keuken, vier slaapkamers en een heerlijk dakterras. Nieuwsgierig naar de ruimte in deze prachtige woning? Neem contact met ons op!
INDELING
Begane grond:
Vanaf de dijk is de entreehal via twee deuren toegankelijk. De royale entreehal is aan de voorzijde voorzien van een erker die voor veel lichtinval zorgt. Vanuit de entreehal heeft u toegang tot de woonkamer, een vaste kast en de trap naar de garage en een slaapkamer. Via enkele tredes is een hoger gelegen ruimte bereikbaar, deels gescheiden van de woonkamer. Vanuit deze ruimte zijn de woonkamer, het toilet en de trap naar de eerste verdieping toegankelijk. De zeer royale woonkamer is aan de achterzijde van de woning gelegen. De woonkamer is voorzien van een balkenplafond, een sfeervolle houtkachel, een plavuizen vloer met vloerverwarming en openslaande deuren naar het dakterras.
Eerste verdieping:
De overloop op de eerste verdieping geeft toegang tot de keuken, de eetkamer en de badkamer. De zeer royale, open keuken is aan de voorzijde van de woning gelegen. De keuken is voorzien van een PVC vloer, opbergruimte en diverse apparatuur: kookplaat, afzuigkap, oven, combi-magnetron, koelkast, vriezer en vaatwasser. Een heerlijke keuken voor vele uren kokkerellen met familie en vrienden. In het verlengde van de keuken is de eetkamer gesitueerd. Vanuit de eetkamer kijkt u uit over de haven. De prachtige badkamer is heerlijk ruim en voorzien van een ligbad, een dubbele wastafel, een inloopdouche en een toilet.
Tweede verdieping:
De overloop geeft toegang tot drie slaapkamers. De slaapkamers aan de voorzijde zijn vergroot middels een dakkapel. De slaapkamer aan de achterzijde heeft twee dakramen, een wastafel en een kast onder één zijde van het schuine dak.
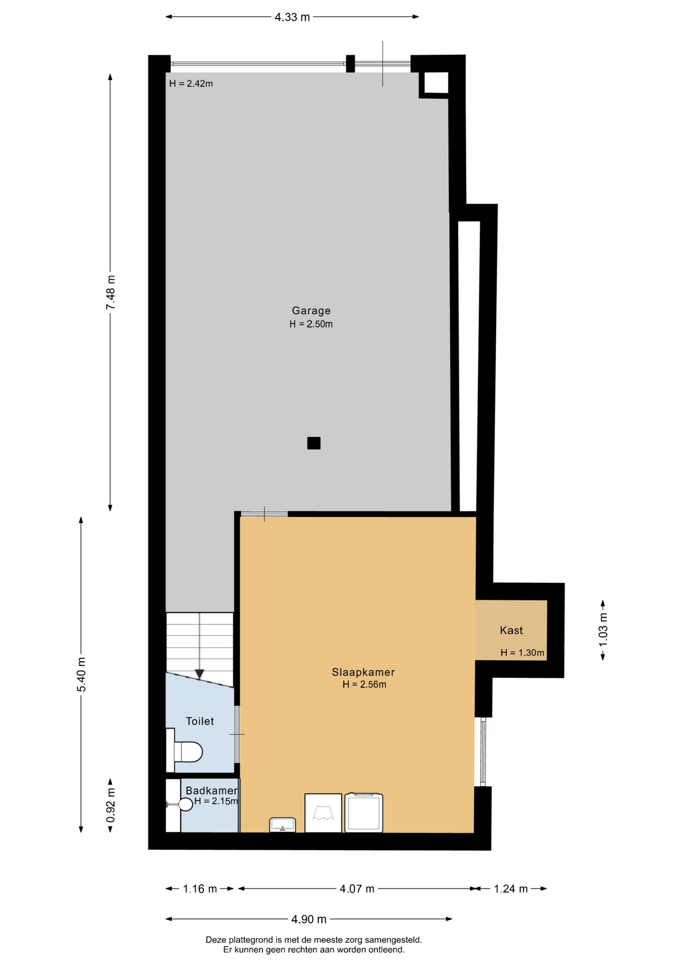
Garage & Slaapkamer:
Vanuit de entreehal van de begane grond heeft u toegang tot de garage en de vierde slaapkamer. De trap komt uit in de garage. In de garage kunt u één auto stallen. Vanuit de garage is de vierde slaapkamer bereikbaar. De ruime slaapkamer is voorzien van inbouwspots, een wastafel en witgoedaansluitingen.
Dakterras:
Het dakterras is via openslaande deuren toegankelijk vanuit de woonkamer. Het is heerlijk vertoeven op het dakterras, met uitzicht over het water.
Bijzonderheden:
– Unieke, ruime woning
– 4 slaapkamers
– Met garage
– Dakterras met uitzicht over het water


