Middelharnis – Christiaan de Vrieslaan 16
3241 GD, Middelharnis
€ 420.000,- k.k.
WoonhuisOmschrijving
Deze 2-onder-1-kap woning uit 1925 biedt een gezellig en comfortabel thuis. De woning straalt sfeer uit, heeft een ruime en goed onderhouden tuin, drie zonnepanelen op het dak en in de woonkamer is een open haard aanwezig. De bijkeuken en aangebouwde berging maken het geheel compleet. INDELING Begane grond: Middels...
Deze 2-onder-1-kap woning uit 1925 biedt een gezellig en comfortabel thuis. De woning straalt sfeer uit, heeft een ruime en goed onderhouden tuin, drie zonnepanelen op het dak en in de woonkamer is een open haard aanwezig. De bijkeuken en aangebouwde berging maken het geheel compleet.
INDELING
Begane grond:
Middels de entreehal, met meterkast en toilet, kom je in de woon-/eetkamer. Deze ruimte is voorzien van een open haard; gezellige winteravonden gegarandeerd! Aan de achterzijde is de open keuken van waaruit er toegang is naar de achtertuin. De keuken is compleet met diverse apparatuur, zoals (gas)fornuis, afzuigkap, magnetron, koel-vriescombinatie en vaatwasser. Grenzend aan de woonkamer is de bijkeuken, welke momenteel als kantoor is ingericht.
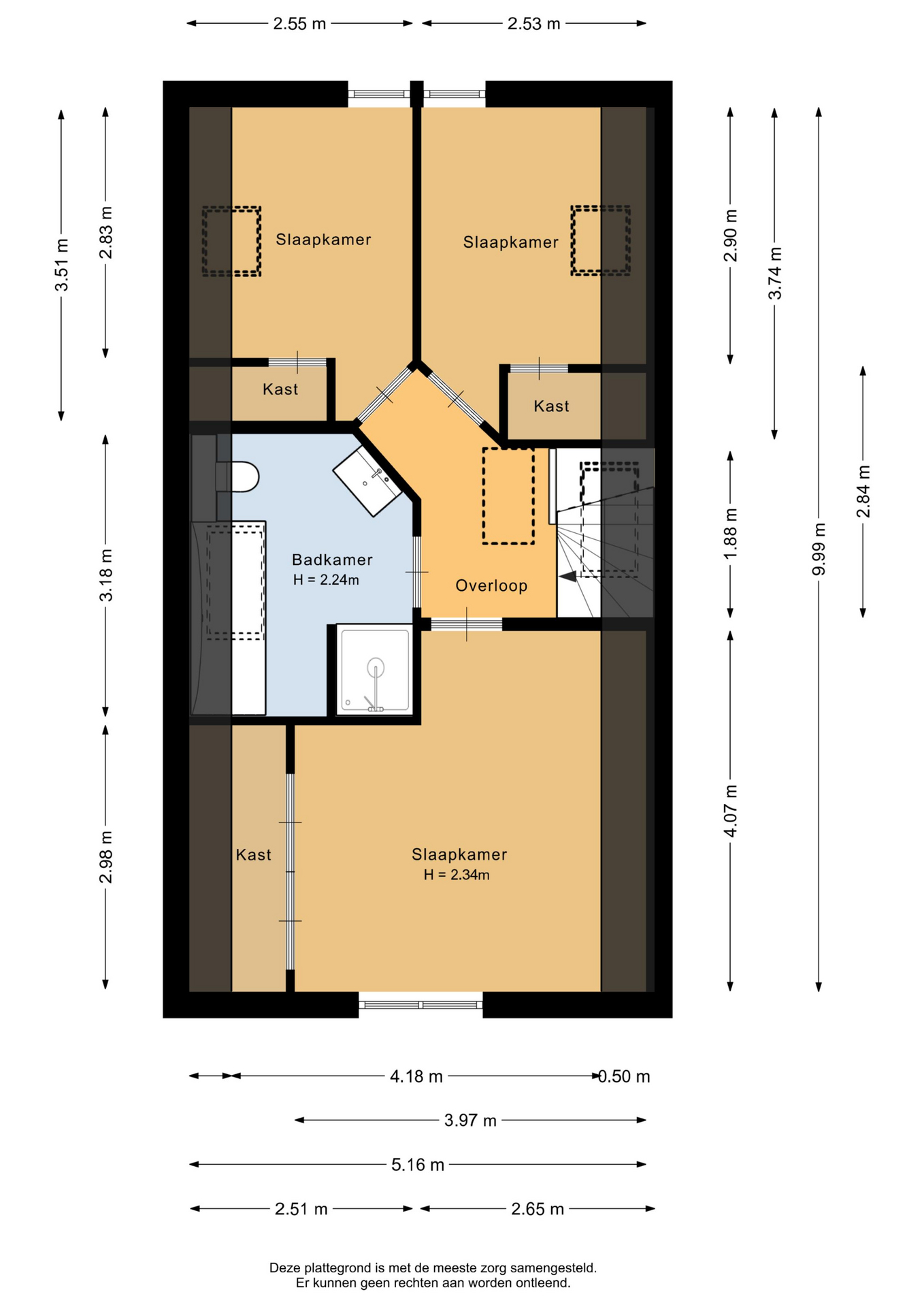
Eerste verdieping:
Op de eerste verdieping zijn er drie comfortabele slaapkamers welke alle drie zijn voorzien van vaste kasten. De badkamer is geheel betegeld en uitgerust met een ligbad, douche, toilet, dubbele wastafel en designradiator.
Vliering:
Vanaf de overloop is er middels een vlizotrap toegang tot de vliering. Ideaal, deze extra opbergruimte.
Tuin & bergingen:
De tuin is netjes onderhouden en onderhoudsvriendelijk aangelegd middels een mix van bestrating, beplanting en gazon. De woning beschikt over twee bergingen, één is aangebouwd aan de woning en achter in de tuin staat de tweede berging opgesteld. Een heerlijke plek om je even terug te trekken of in groter gezelschap te vertoeven.
Bijzonderheden:
– Oplevering in overleg
– Ruime tuin
– Drie zonnepanelen
– Open haard
– Parkeervergunningen


