Middelharnis – Polderlaan 31
3241 SK, Middelharnis
€ 585.000,- k.k.
WoonhuisOmschrijving
Deze moderne, rietgedekte vrijstaande woning ligt direct aan het water en grenst aan een prachtig natuurgebied, waardoor je hier elke dag rust, ruimte en een uniek gevoel van vrijheid ervaart. De begane grond is uitgewerkt als één open woonconcept, met een sfeervolle leefkeuken die naadloos overgaat in de royale living....
Deze moderne, rietgedekte vrijstaande woning ligt direct aan het water en grenst aan een prachtig natuurgebied, waardoor je hier elke dag rust, ruimte en een uniek gevoel van vrijheid ervaart. De begane grond is uitgewerkt als één open woonconcept, met een sfeervolle leefkeuken die naadloos overgaat in de royale living. Via de openslaande deuren bereik je het terras en het ruime vlonder aan het water. Met moderne, duurzame technieken zoals een warmtepomp woon je hier comfortabel en toekomstbestendig, op korte wandelafstand van het Haringvliet.
INDELING
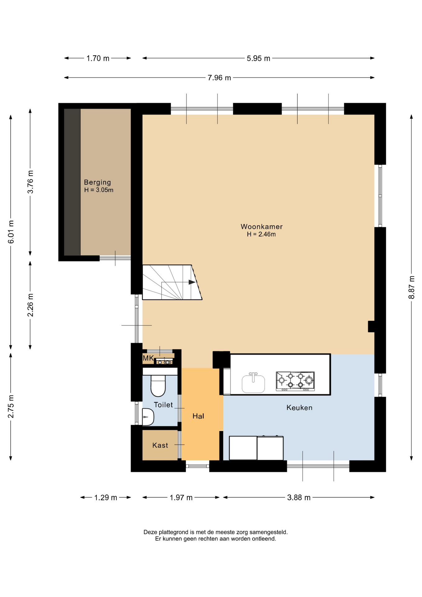
Begane grond:
Via de voordeur stap je binnen in de woonkamer met open keuken. De ruimtes voelen licht en ruim aan. Vanuit de woonkamer heb je een prachtig zicht over de tuin, het kabbelende water en het weidse landschap daarachter en middels openslaande deuren stap je zo naar buiten. De keuken vormt het warme hart van de woning. Hier staat een spoel- en kookeiland dat uitnodigt tot avonden vol culinaire aandacht. De gehele begane grond is voorzien van vloerverwarming.
Eerste verdieping:
Op de eerste verdieping vind je drie ruime slaapkamers en een stijlvolle badkamer. De master bedroom aan de voorzijde straalt warmte en intimiteit uit. Twee handige inbouwkasten bieden volop bergruimte en het sfeervolle schuine dak geeft de kamer een charmante uitstraling. De badkamer is voorzien van een inloopdouche met luxe showerpanel, een dubbele wastafel met meubel en een toilet.
Tuin & berging:
Het vlonderterras aan het water vormt een waardevolle toevoeging aan deze woning. Hier kun je in alle rust genieten van de buitenlucht terwijl het uitzicht zich als een schilderij voor je ontvouwt. Aan de voorzijde beschikt de woning over een eigen oprit met voldoende ruimte om de auto op eigen terrein te parkeren. De voorbereiding voor een laadpaal is al aanwezig, ideaal voor het opladen van een elektrische auto. Vanaf de oprit bereik je direct de inpandige berging, een praktische plek voor opslag en gemak. De tuin ligt rondom de woning en is onderhoudsvriendelijk aangelegd. Dit creëert een fijne balans tussen sfeer en gebruiksgemak, zodat je volop kunt genieten van het buitenleven zonder zorgen.
Bijzonderheden:
– Oplevering in overleg
– Rustig gelegen, aan het water
– Voorzien van een CV-ketel (2022) en warmtepomp (2025)
– Vloerverwarming op de begane grond
– Open woonconcept op de begane grond met leefkeuken en royale living
– Duurzaam en toekomstbestendig
– Energielabel A+
– Rieten kap in 2022 vervangen
– Jaarlijkse VvE-bijdrage is € 750,–, dit is inclusief afvalstofheffing
WoonhuisKenmerken
Overdracht
Bouwvorm
Indeling
Energie
Ik heb interesseNeem contact met mij op
Als u hier uw gegevens achterlaat, dan nemen wij contact met u op om u meer te vertellen over deze woning.

