Sommelsdijk – Westelijke Achterweg 22
3245 BJ, Sommelsdijk
€ 450.000,- v.o.n.
WoonhuisOmschrijving
Uniek object met karakter en potentie – casco ruimte in monumentale schuur Ben jij op zoek naar een karaktervol pand dat je volledig naar eigen wens kunt afbouwen? Deze ruime, casco ruimte, gelegen in een prachtig gerestaureerde monumentale schuur, biedt jou die kans. Het betreft een robuuste basis met authentieke...
Uniek object met karakter en potentie – casco ruimte in monumentale schuur
Ben jij op zoek naar een karaktervol pand dat je volledig naar eigen wens kunt afbouwen? Deze ruime, casco ruimte, gelegen in een prachtig gerestaureerde monumentale schuur, biedt jou die kans. Het betreft een robuuste basis met authentieke houten spanten, hoge plafonds en een industriële uitstraling – perfect voor wie op zoek is naar een bijzondere woning.
Met een royale oppervlakte en veel lichtinval via de grote raampartijen en originele stalraampjes, is dit een ideale plek voor het realiseren van een prachtige woning. De ruwbouw is al grotendeels voltooid: de constructie is stevig, het dak vernieuwd en installaties zijn voorbereid. Nu is het aan jou om het af te maken.
INDELING
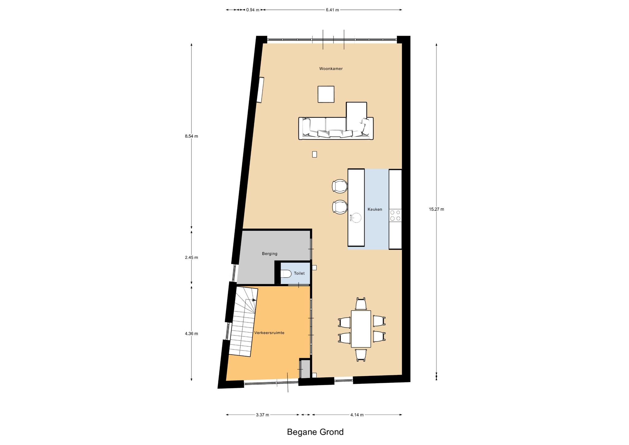
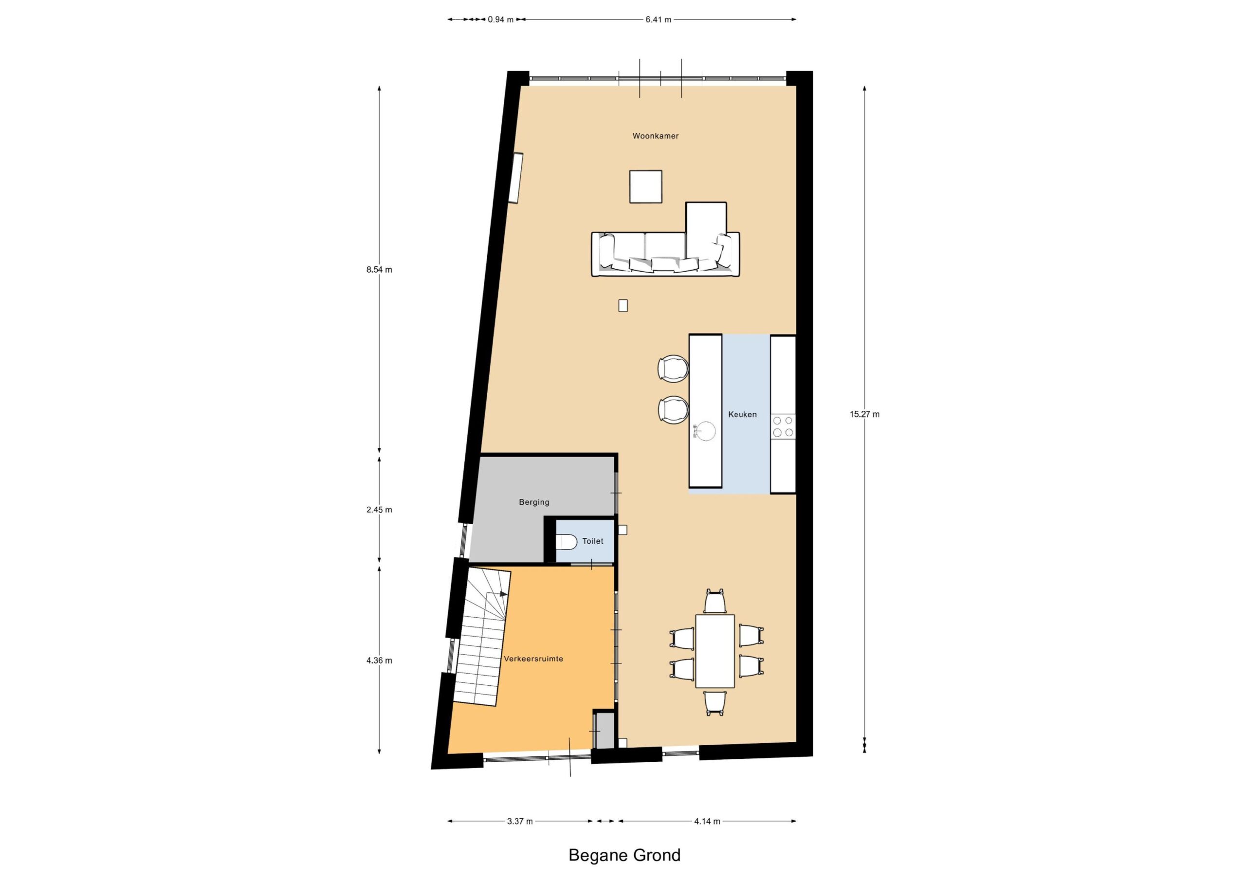
Begane grond:
De begane grond is zeer ruim. Hier is voldoende ruimte om een heerlijke woonkamer te creëren, met openslaande deuren naar de tuin, een eetkamer en een open keuken.
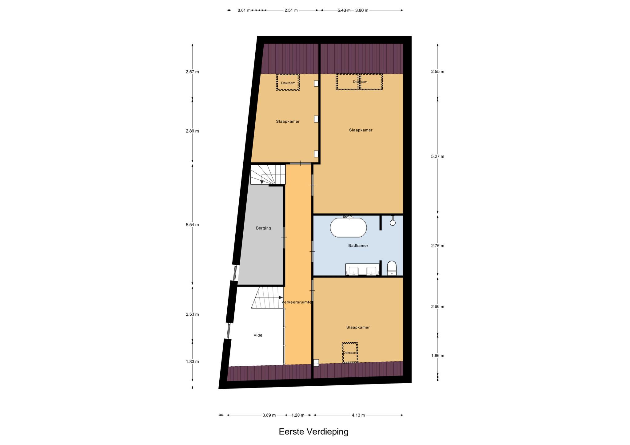
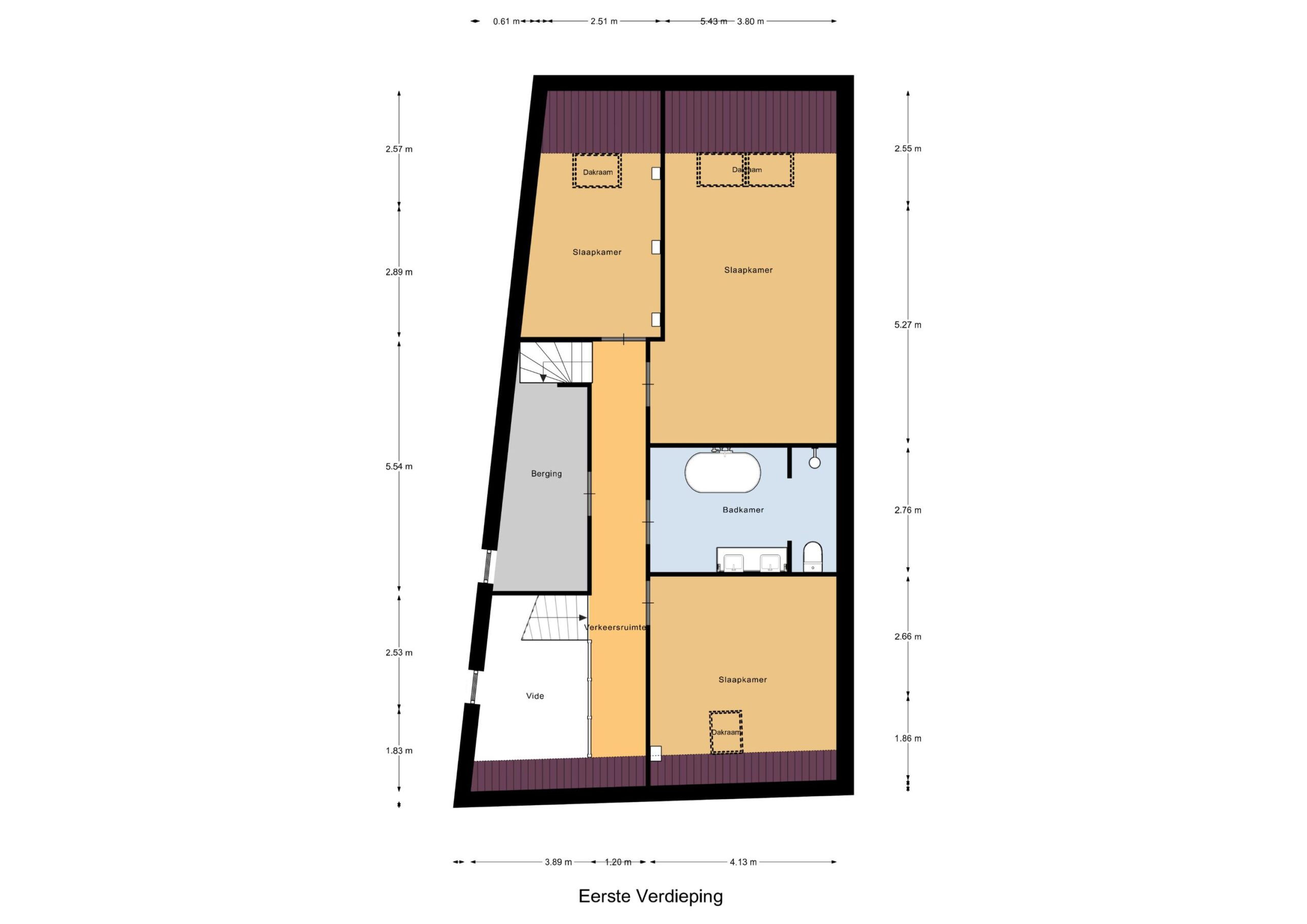
Eerste verdieping:
Op de eerste verdieping is voldoende ruimte voor bijvoorbeeld drie slaapkamers en een royale badkamer.
Tweede verdieping:
De tweede verdieping is geschikt als vierde slaapkamer, kantoor of hobbyruimte.
Tuin:
De achtertuin is gelegen op het oosten. Achter in de tuin loopt een pad achter het naastgelegen kavel langs.
U heeft, als bewoner van de tussenwoning, recht van overpad, inclusief het gebruik van één parkeerplaats, op het pad rechts van de hoekwoning.
Bijzonderheden:
– Gelegen in een landelijke omgeving met goede bereikbaarheid
– Authentieke details zoals houten gebinten en metselwerk behouden
– Veel ruimte en flexibiliteit qua indeling
– Grote raampartijen en openslaande deuren naar buiten
– Grotendeels voorbereid op moderne installaties
– De plattegronden en impressies zijn voorbeelden hoe de woning (ingedeeld) zou kunnen worden.
Let op: de ruimte wordt in huidige staat aangeboden (casco). Dit betekent dat afwerking, inrichting en verdere technische afbouw nog dient te gebeuren.
WoonhuisKenmerken
Overdracht
Bouwvorm
Indeling
Energie
Ik heb interesseNeem contact met mij op
Als u hier uw gegevens achterlaat, dan nemen wij contact met u op om u meer te vertellen over deze woning.

