Sommelsdijk – Oranjestraat 11
3245 AT, Sommelsdijk
€ 225.000,- k.k.
WoonhuisOmschrijving
Laat dit de volgende stap in jouw leven zijn! Met wat liefde, tijd en vakmanschap kun je hier een prachtig (t)huis van maken. Denk aan het realiseren van een mooie (woon)keuken en badkamer, het opfrissen van vloeren en muren, en het verbeteren van de isolatie en installaties. De indeling biedt...
Laat dit de volgende stap in jouw leven zijn! Met wat liefde, tijd en vakmanschap kun je hier een prachtig (t)huis van maken. Denk aan het realiseren van een mooie (woon)keuken en badkamer, het opfrissen van vloeren en muren, en het verbeteren van de isolatie en installaties. De indeling biedt mogelijkheden om de ruimtes praktisch én sfeervol in te richten. De woning ligt in een rustige straat met alle voorzieningen — winkels, scholen en openbaar vervoer — op korte afstand. Een ideale plek om jouw woonideeën werkelijkheid te laten worden!
INDELING
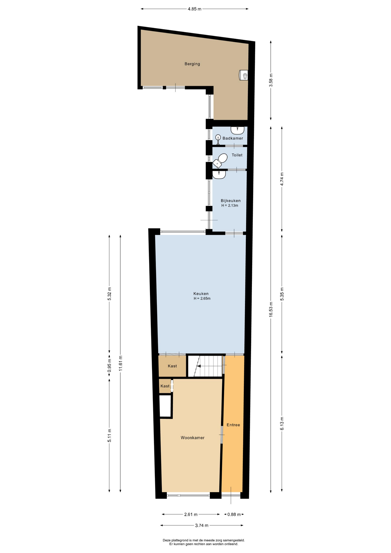
Begane grond:
Middels de entreehal kom in de woonkamer en de (woon)keuken. De woonkamer, gelegen aan de voorzijde, beschikt over een praktische inbouwkast. De keukenruimte biedt volop mogelijkheden om jouw droomkeuken te creëren — een plek waar je kunt koken en genieten met vrienden en familie. Aansluitend bevindt zich de bijkeuken, met daarachter het toilet en de badkamer, voorzien van een douche en een wastafel. Vanuit de bijkeuken loop je zo naar buiten.
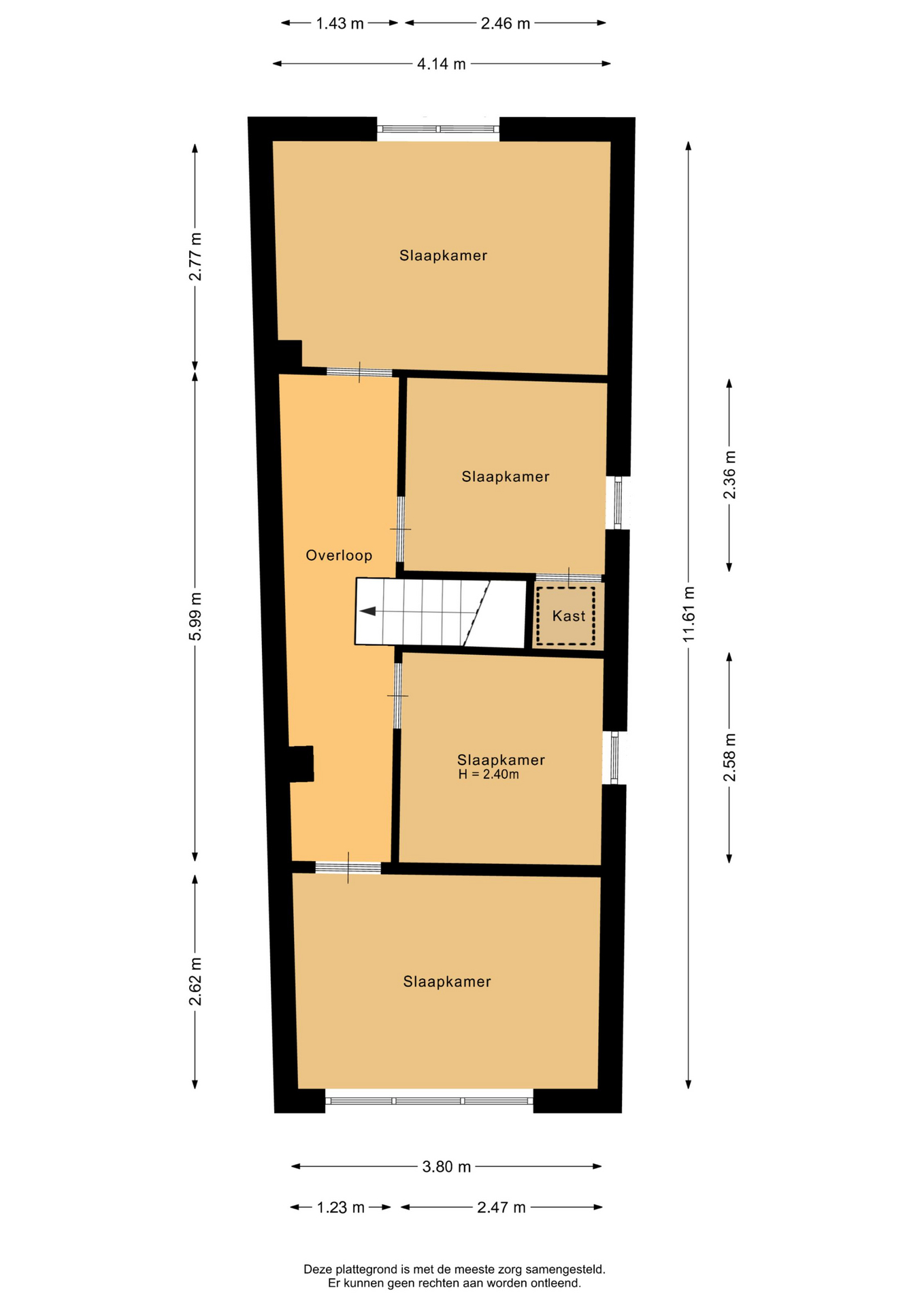
Eerste verdieping:
De eerste verdieping beschikt over vier slaapkamers. Hier kun je de kamers helemaal naar eigen smaak inrichten — van een sfeervolle ouderslaapkamer tot een gezellige kinderkamer of rustige werkplek. Via een vlizotrap is de vliering bereikbaar, ideaal voor extra bergruimte of het opbergen van seizoensspullen.
Tuin & berging:
Achter de woning ligt een tuin die nog naar eigen wens ontwikkeld kan worden. Hier kun je een rustige en groene buitenruimte creëren, helemaal afgestemd op jouw stijl. Daarnaast is er een aangrenzende stenen berging, ideaal voor extra opslag of het opbergen van tuinspullen.
Bijzonderheden:
– Woning wordt gekocht zoals hij “as is where is”
– Beschermd dorps- of stadsgezicht
– Doe-het-zelf-woning – perfect voor degenen die hun huis graag een persoonlijk tintje geven
– Bekijk de sfeer impressies tussen de foto’s om een idee te hebben wat er mogelijk is met de woning en tuin!
WoonhuisKenmerken
Overdracht
Bouwvorm
Indeling
Energie
Ik heb interesseNeem contact met mij op
Als u hier uw gegevens achterlaat, dan nemen wij contact met u op om u meer te vertellen over deze woning.


