Middelharnis – Berkenlaan 15
3241 BB, Middelharnis
€ 325.000,- k.k.
WoonhuisOmschrijving
Welkom bij deze leuke eengezinswoning, gelegen aan de Berkenlaan 15 in Middelharnis. Deze gezellige tussenwoning, gelegen in een rustige buurt, is voorzien van een woon-/eetkamer, keuken en drie slaapkamers. De verzorgde achtertuin is gelegen op het noordoosten. INDELING Begane grond: Als je het huis binnenstapt, kom je via de entreehal...
Welkom bij deze leuke eengezinswoning, gelegen aan de Berkenlaan 15 in Middelharnis. Deze gezellige tussenwoning, gelegen in een rustige buurt, is voorzien van een woon-/eetkamer, keuken en drie slaapkamers. De verzorgde achtertuin is gelegen op het noordoosten.
INDELING
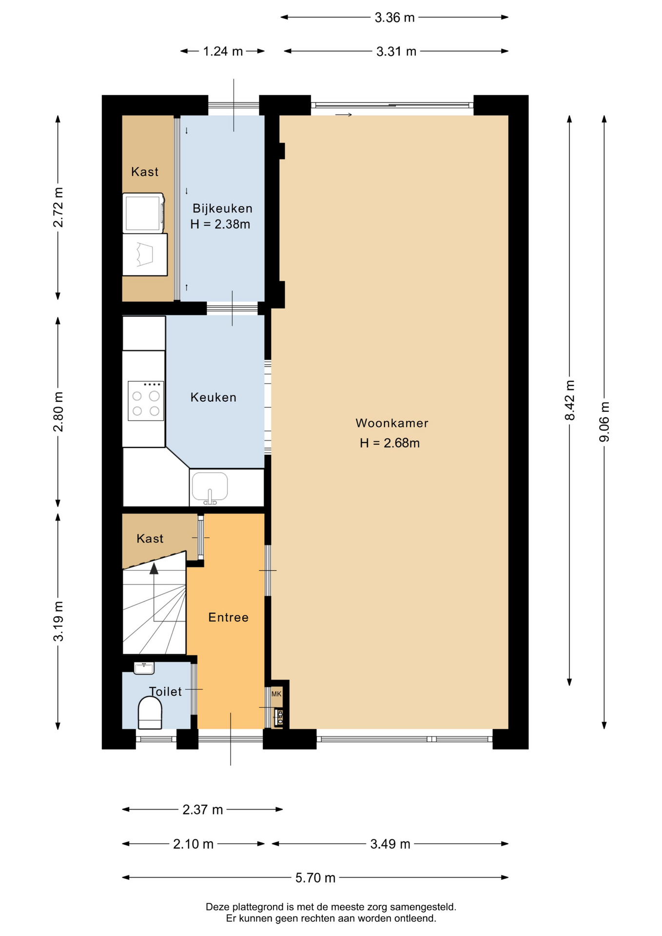
Begane grond:
Als je het huis binnenstapt, kom je via de entreehal in de gezellige woon-/eetkamer. De woonkamer is aan de achterzijde gesitueerd. De schuifpui zorgt voor voldoende natuurlijke lichtinval en geeft toegang tot de tuin. In het verlengde van de woonkamer is de eetkamer gelegen. Tussen de woon- en eetkamer is de toegang tot de halfopen keuken, welke voorzien is van opbergruimte en diverse apparatuur: kookplaat, afzuigkap, combi-oven, koel-/vriescombinatie en vaatwasser. Vanuit de keuken is de achtergelegen bijkeuken bereikbaar. De bijkeuken, met grote kast met daarin de witgoedaansluitingen, geeft toegang tot de achtertuin.
Eerste verdieping:
Op de eerste verdieping bevinden zich de drie slaapkamers, waarvan twee met één of meerdere vaste kasten. De slaapkamers zijn voorzien van een laminaatvloer. De badkamer is geheel betegeld en voorzien van een inloopdouche, een wastafel en een designradiator.
Vliering:
Vanaf de overloop is de vliering bereikbaar middels een vlizotrap.
Tuin en berging:
De woning beschikt over een goed onderhouden voor- en achtertuin. De achtertuin is gelegen op het noordoosten en heeft een handige achterom. Tevens beschikt de woning over een vrijstaande stenen berging, perfect voor het opbergen van tuingereedschap of fietsen. Naast de berging is een overkapping. Het is hier heerlijk vertoeven.
Bijzonderheden:
– Oplevering: in overleg
– Leuke tussenwoning
– Goed onderhouden tuin
– Rustige buurt
– 10 zonnepanelen


