Nieuwe-Tonge – Korteweegje 24
3244 AL, Nieuwe-Tonge
€ 995.000,- k.k.
WoonhuisOmschrijving
Deze stijlvolle en luxueus afgewerkte woonboerderij wordt nu te koop aangeboden. Het pand is gelegen aan een rustige weg op een perceel van 1.056 m². De woning is met zorg en aandacht ingericht en combineert comfort en hoogwaardige materialen. Zowel binnen als buiten straalt het geheel kwaliteit en klasse uit....
Deze stijlvolle en luxueus afgewerkte woonboerderij wordt nu te koop aangeboden. Het pand is gelegen aan een rustige weg op een perceel van 1.056 m². De woning is met zorg en aandacht ingericht en combineert comfort en hoogwaardige materialen. Zowel binnen als buiten straalt het geheel kwaliteit en klasse uit. Denk hierbij aan een royale wijnklimaatkast, houtkachel, 22 zonnepanelen, carport en een overkapping.
INDELING
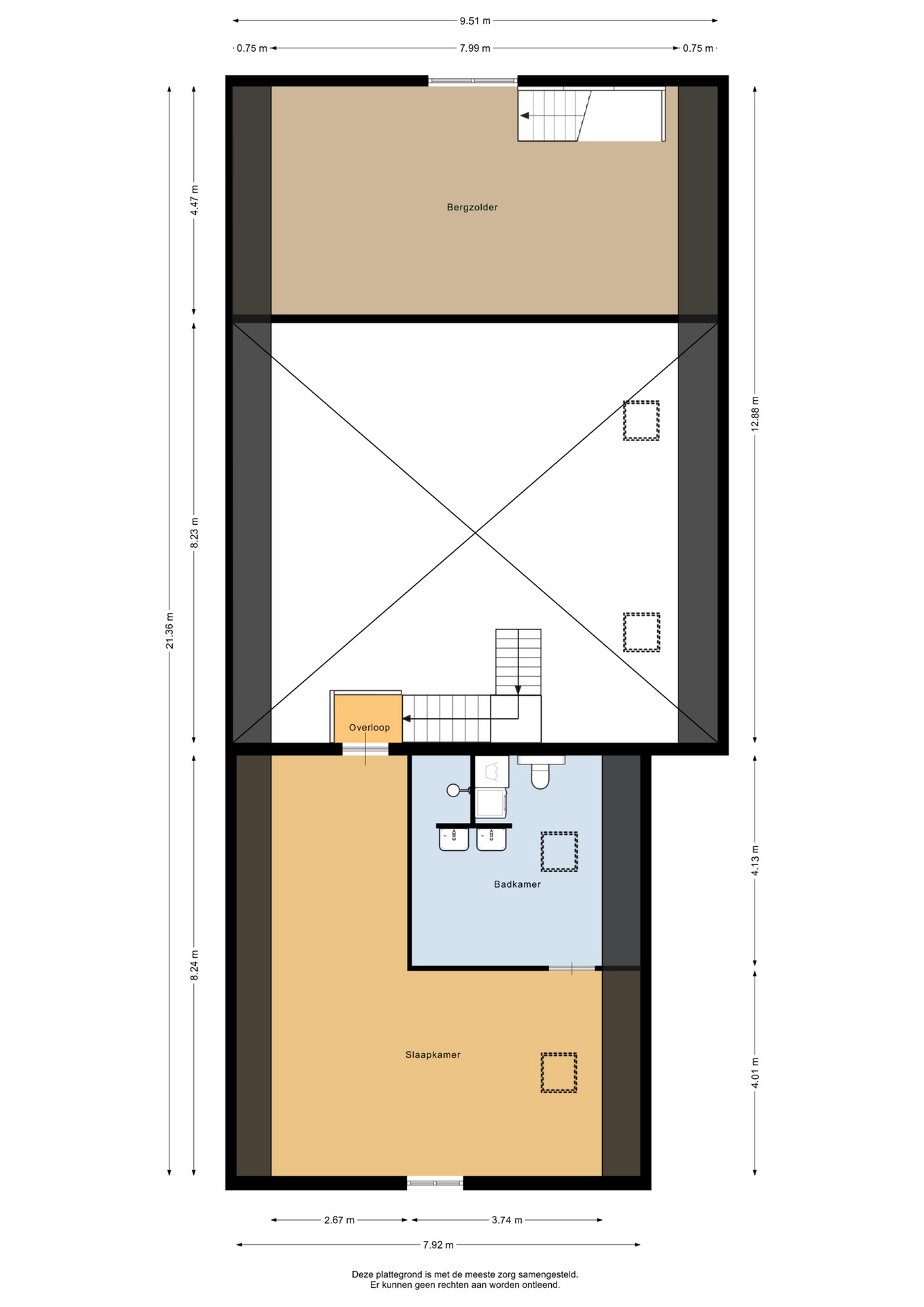
Begane grond:
De entreehal, met toilet, geeft toegang tot zowel de woonkamer als de woonkeuken. Als je de woonkamer binnen loopt vallen de houten details en de vide direct op. In het midden van de woonkamer staat een houtkachel en de dubbele wijnklimaatkast staat ook in deze ruimte opgesteld. De royale raampartij aan de voorzijde zorgt voor een overvloed aan natuurlijk licht wat een heerlijk ruimtelijk en open gevoel geeft. De woonkeuken is voorzien van een spoeleiland en diverse apparatuur, zoals gasfornuis, afzuigkap, koelkast, vriezer en vaatwasser. In de keuken is middels een luik toegang tot de kelder. Vanuit de woonkamer is een slaapkamer bereikbaar welke voorzien is van een douchecabine. De begane grond is voorzien van vloerverwarming.
Eerste verdieping:
Vanuit de woonkamer kun je middels een vaste trap naar de slaapkamer en badkamer op de eerste verdieping. Ook hier zijn de houten details zichtbaar, welke zorgen voor een fijne sfeer. De slaapkamer geeft toegang tot de badkamer welke voorzien is van een dubbele wastafel met meubel, inloopdouche, toilet en designradiator.
Aan de andere zijde van de woonkamer is middels een vaste trap de bergzolder bereikbaar.
Tuin & berging:
De tuin en woning vormen één geheel en zijn beide in stijl gerealiseerd en aangelegd. Er is voldoende mogelijkheid je auto op eigen terrein te parkeren. De achtertuin, gelegen op het zuidwesten, is voorzien van een carport, houten berging en een overkapping. De royale overkapping en deze heerlijke tuin geven ruime mogelijkheden om hier in zowel in klein als groter gezelschap van te kunnen genieten.
Bijzonderheden:
– Oplevering in overleg
– 22 zonnepanelen
– Geheel in stijl en op hoogwaardig niveau
– Overkapping en carport


