Oude-Tonge – Wiekenas 5
3255 CB, Oude-Tonge
€ 510.000,- k.k.
WoonhuisOmschrijving
In een jonge, kindvriendelijke woonwijk in Oude-Tonge mogen we je deze prachtige, uitgebouwde tussenwoning aanbieden. De ruime woning heeft een gezellige woonkamer, een open keuken en vijf slaapkamers. De verzorgde achtertuin is gelegen op het zuidoosten. INDELING Begane grond: De entreehal, met vaste kast, toilet, meterkast en trapopgang, geeft toegang...
In een jonge, kindvriendelijke woonwijk in Oude-Tonge mogen we je deze prachtige, uitgebouwde tussenwoning aanbieden. De ruime woning heeft een gezellige woonkamer, een open keuken en vijf slaapkamers. De verzorgde achtertuin is gelegen op het zuidoosten.
INDELING
Begane grond:
De entreehal, met vaste kast, toilet, meterkast en trapopgang, geeft toegang tot de woon-/eetkamer en de keuken. De royale woonkamer, aan de achterzijde van de woning gelegen, is voorzien van een mooie PVC vloer met vloerverwarming, grote raampartijen die voor veel natuurlijke lichtinval zorgen en een deur naar de tuin. In het verlengde van de woonkamer is de eethoek gesitueerd, met aansluitend de open keuken. De mooie keuken is voorzien van een hoekopstelling en een kastenwand. Er is veel opbergruimte en diverse apparatuur: kookplaat, afzuigkap, oven, combi-magnetron, koelkast, vaatwasser en kokend waterkraan. De gehele begane grond is voorzien van een PVC vloer met vloerverwarming.
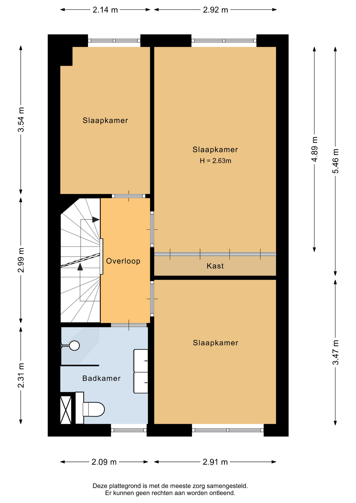
Eerste verdieping:
De overloop geeft toegang tot drie slaapkamers en de badkamer. De ruime slaapkamers zijn voorzien van houtlook vinyl. De master bedroom beschikt over een grote, vaste kast. De geheel betegelde badkamer is voorzien van een inloopdouche, een badmeubel met dubbele wastafel, een toilet en een designradiator. Ook de gehele eerste verdieping is voorzien van vloerverwarming.
Tweede verdieping:
De tweede verdieping is ook bereikbaar middels een vaste trap. De overloop, met dakraam, geeft toegang tot de overige twee slaapkamers en een berging met daarin de witgoedaansluitingen en een dakraam. De slaapkamers zijn beide voorzien van een laminaatvloer en een dakraam.
Tuin & Berging:
De verzorgde achtertuin, gelegen op het zuidoosten, is voorzien van bestrating, borders met groen en kunstgras. Het is hier heerlijk vertoeven. Achter in de tuin staat de houten berging. Naast de berging is een poort waardoor de tuin achterom bereikbaar is.
Bijzonderheden:
– Oplevering: zomer 2026
– Uitgebouwde tussenwoning
– Vijf slaapkamers
– HR+++ glas
– 12 zonnepanelen
– Vloerverwarming op begane grond en eerste verdieping
WoonhuisKenmerken
Overdracht
Bouwvorm
Indeling
Energie
Ik heb interesseNeem contact met mij op
Als u hier uw gegevens achterlaat, dan nemen wij contact met u op om u meer te vertellen over deze woning.

