Middelharnis – Buitenring 16
3241 DW, Middelharnis
€ 550.000,- k.k.
WoonhuisOmschrijving
Deze tussenwoning heeft een zee van ruimte; maar liefst 6 slaapkamers en een vliering. De woning is gelegen aan een autovrij pad met op loopafstand ontmoetings- en beweegpark 'Vliedpark'. Aan de voorzijde heb je open uitzicht over het water. De achtertuin is gelegen op het noorden en voorzien van een...
Deze tussenwoning heeft een zee van ruimte; maar liefst 6 slaapkamers en een vliering. De woning is gelegen aan een autovrij pad met op loopafstand ontmoetings- en beweegpark ‘Vliedpark’. Aan de voorzijde heb je open uitzicht over het water. De achtertuin is gelegen op het noorden en voorzien van een vrijstaande berging.
INDELING
Begane grond:
Vanuit de entreehal, met meterkast en toilet, kom je in de woonkamer met open keuken. De woonkamer heeft een schuifpui naar de achtertuin welke veel daglicht laat binnen komen. De open keuken is aan de voorzijde gelegen en beschikt over een een raampartij van vloer tot plafond, met uitzicht over het water. De keuken is voorzien van diverse apparatuur, zoals kookplaat, afzuigkap, combi-oven, koelkast, vriezer en vaatwasser.
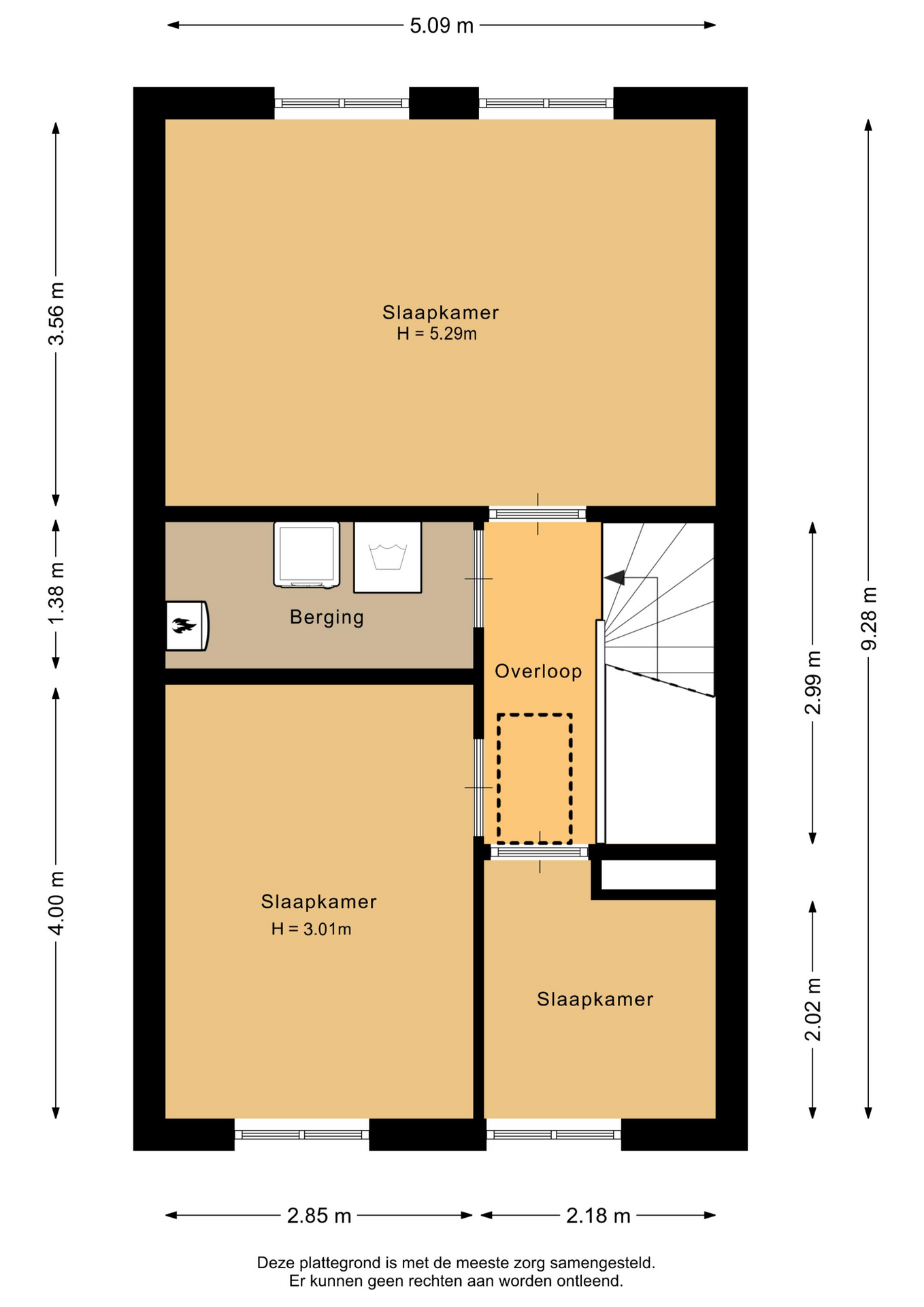
Eerste verdieping:
De overloop geeft toegang tot drie slaapkamers en de badkamer. De badkamer is geheel betegeld en voorzien van een inloopdouche, wastafelmeubel, toilet en designradiator. Deze verdieping beschikt over royale raampartijen welke zorgen voor voldoende daglicht.
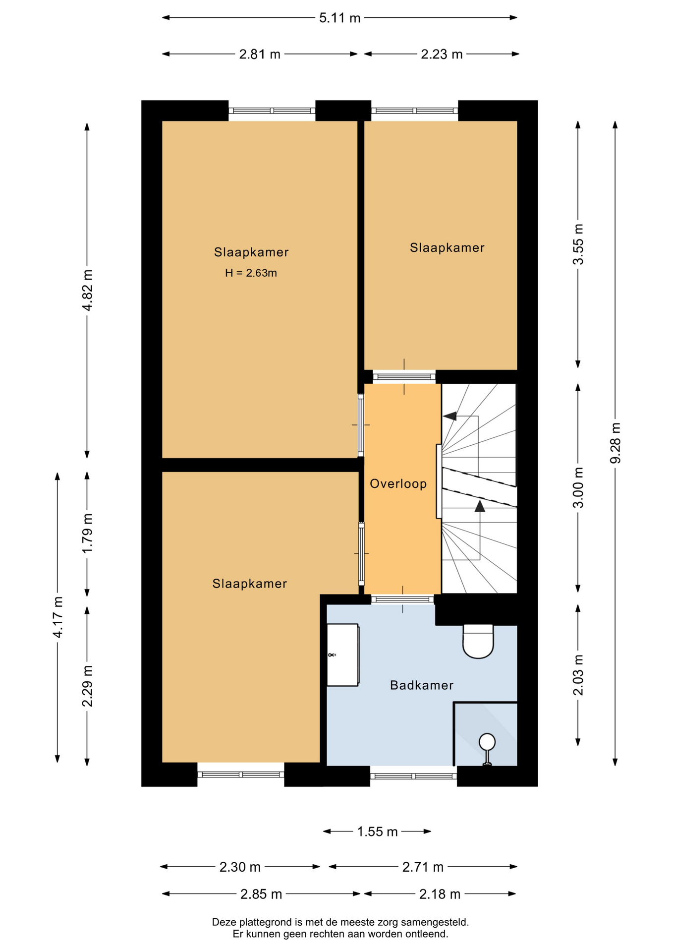
Tweede verdieping:
De overige drie slaapkamers zijn gerealiseerd op de tweede verdieping. Ook op deze verdieping vindt je de grote raampartijen terug, wat een ruimtelijk effect creëert. Er is een berging waar de CV-ketel is geplaatst en de witgoedaansluitingen zijn.
Vliering:
Middels een schaartrap is vanaf de overloop de vliering te bereiken. Deze ruimte geeft veel extra opbergruimte.
Tuin & berging:
De achtertuin is gelegen op het noorden en onderhoudsvriendelijk aangelegd. Deze is voorzien van bestrating, beplanting en een houten berging. De schuifpui zorgt ervoor dat de tuin een verlenging van de woning is en in de zomermaanden geeft dit extra leefcomfort.
Bijzonderheden:
– Oplevering in overleg
– Dubbel glas HR
– 7 zonnepanelen
– Vrij uitzicht aan de voorzijde
– Gelegen aan een autovrij pad
WoonhuisKenmerken
Overdracht
Bouwvorm
Indeling
Energie
Ik heb interesseNeem contact met mij op
Als u hier uw gegevens achterlaat, dan nemen wij contact met u op om u meer te vertellen over deze woning.

