Ouddorp – Dorpsweg 41-12
3253 AG, Ouddorp
€ 400.000,- k.k.
AppartementOmschrijving
In een gezellige buurt van Ouddorp presenteren we met plezier dit leuke appartement in appartementencomplex De Stove! Een heerlijke plek met een lichte woon-/eetkamer, open keuken, drie slaapkamers en een ruime vliering. En dan hebben we het nog niet eens gehad over het zonnige balkon op het zuiden! INDELING Eerste...
In een gezellige buurt van Ouddorp presenteren we met plezier dit leuke appartement in appartementencomplex De Stove! Een heerlijke plek met een lichte woon-/eetkamer, open keuken, drie slaapkamers en een ruime vliering. En dan hebben we het nog niet eens gehad over het zonnige balkon op het zuiden!
INDELING
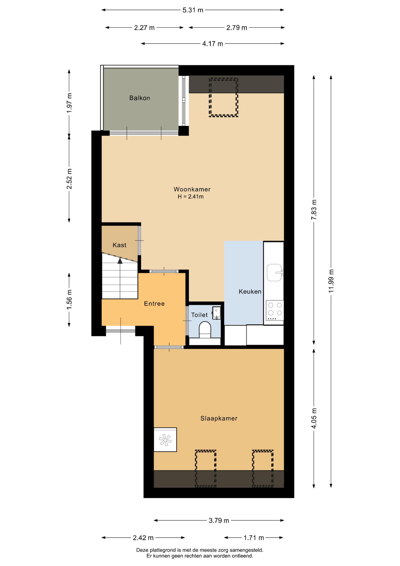
Eerste verdieping:
Via de trap in de gezamenlijke hal bereik je het appartement op de eerste verdieping. De entree met trapopgang leidt je naar de woon-/eetkamer, open keuken, een slaapkamer en het toilet. De woon-/eetkamer aan de achterzijde is voorzien van een nette laminaatvloer, praktische trapkast en een dakraam. Dankzij de openslaande deuren naar het balkon en de grote raampartijen geniet je hier van een fijne hoeveelheid daglicht.
De open hoekkeuken biedt volop opbergruimte en is uitgerust met diverse apparatuur: kookplaat, afzuigkap, combi-oven, koel-/vriescombinatie en vaatwasser. De ruime slaapkamer aan de voorzijde heeft een laminaatvloer en maar liefst twee dakramen waardoor de ruimte heerlijk licht is.
Tweede verdieping:
Op de tweede verdieping vind je de overloop die toegang geeft tot twee slaapkamers, de badkamer en een bergruimte met CV-ketel. Beide slaapkamers hebben een laminaatvloer en een dakraam; de slaapkamer aan de voorzijde beschikt bovendien over een vaste kast. De volledig betegelde badkamer is uitgerust met een douche, wastafel, designradiator en toilet.
Vliering:
Via de slaapkamer aan de achterzijde bereik je de vliering met een vlizotrap. Perfect voor extra opslagruimte!
Balkon & Berging:
Het zonnige balkon op het zuiden is bereikbaar vanuit de woon-/eetkamer. Een heerlijke plek om te genieten van een kop koffie, een goed boek of de laatste zonnestralen van de dag.
Daarnaast beschikt het appartement over een eigen berging, rechts naast het complex — ideaal voor je fiets of extra spullen. Voor het appartementencomplex bevindt zich de parkeerplaats waar u één gereserveerde parkeerplaats heeft.
Bijzonderheden:
– Oplevering: in overleg
– Appartement met twee woonlagen
– Drie slaapkamers
– Balkon, gelegen op het zuiden
– Eén gereserveerde parkeerplaats
– In een gezellige buurt
AppartementKenmerken
Overdracht
Bouwvorm
Indeling
Energie
Ik heb interesseNeem contact met mij op
Als u hier uw gegevens achterlaat, dan nemen wij contact met u op om u meer te vertellen over deze woning.

