Herkingen – Molendijk 20
3249 AP, Herkingen
€ 310.000,- k.k.
WoonhuisOmschrijving
Welkom aan de Molendijk 20 te Herkingen, een unieke kans voor de liefhebber van rust, ruimte en waterbeleving. Deze woning biedt een betrouwbare basis voor comfortabel wonen. Gelegen in het charmante Herkingen, direct verbonden met de Grevelingen, ervaart u hier dagelijks het ultieme buitenleven. De aanwezigheid van een eigen haven...
Welkom aan de Molendijk 20 te Herkingen, een unieke kans voor de liefhebber van rust, ruimte en waterbeleving.
Deze woning biedt een betrouwbare basis voor comfortabel wonen. Gelegen in het charmante Herkingen, direct verbonden met de Grevelingen, ervaart u hier dagelijks het ultieme buitenleven. De aanwezigheid van een eigen haven aan het Grevelingenmeer maakt deze locatie bijzonder aantrekkelijk voor watersportliefhebbers en recreanten.
De woning ademt potentie en karakter. Hier creëert u moeiteloos uw eigen woonbeleving, met de rust van het dorp en de levendigheid van het water binnen handbereik. Of u nu zoekt naar een permanente woonplek of een tweede verblijf, deze locatie biedt het beste van beide werelden.
Herkingen staat bekend om haar open landschap, uitgestrekte vergezichten en directe ligging aan het Grevelingenmeer. Een omgeving waar ontspanning en natuur centraal staan, met volop mogelijkheden voor zeilen, wandelen en genieten.
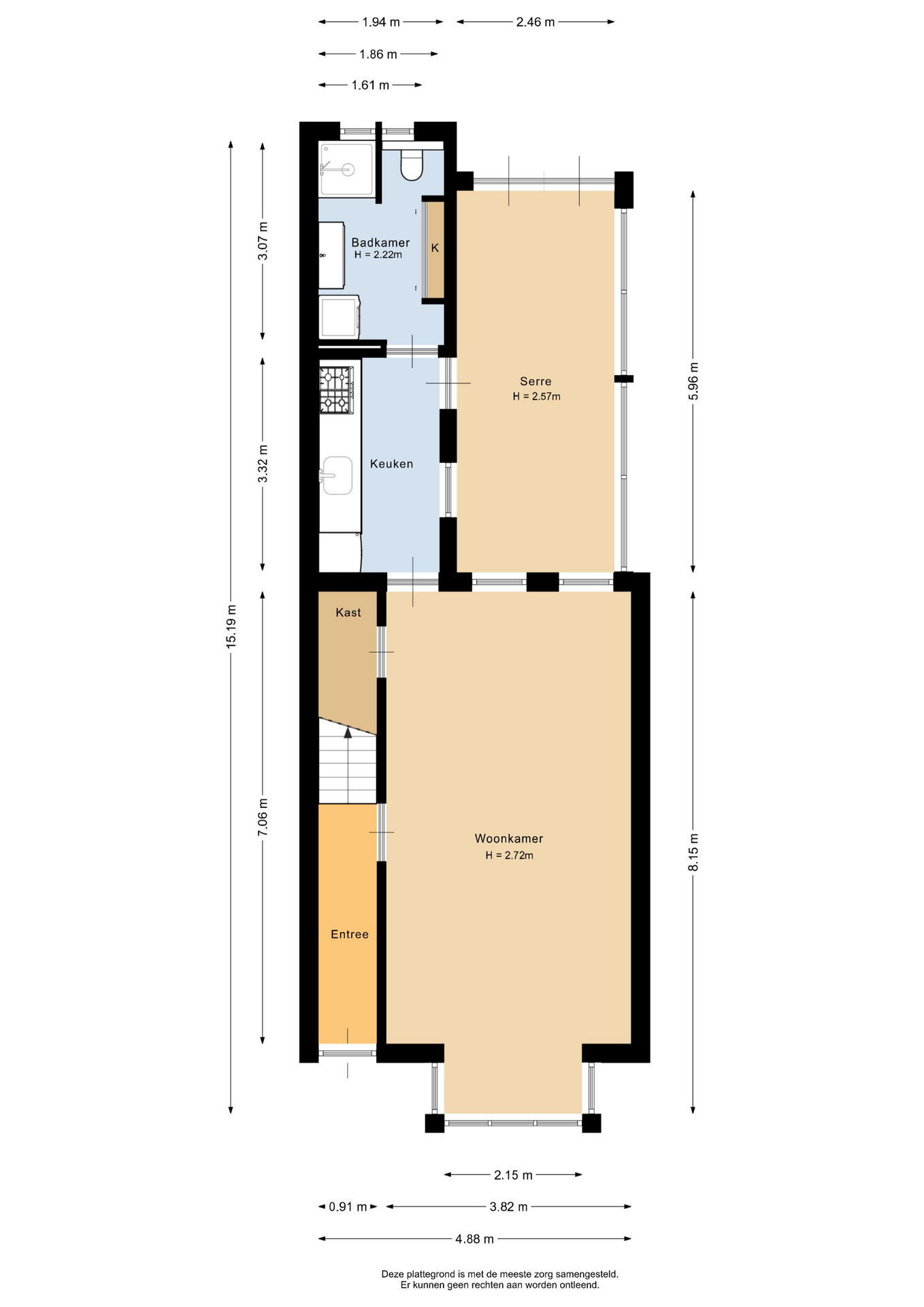
INDELING
Begane grond:
Via de entreehal kom je direct in de ruime en lichte woonkamer. Aan de voorzijde zorgt de erker voor een prettige lichtinval en een gezellige uitstraling. Aan de achterzijde sluit de woonkamer naadloos aan op de keuken. De keuken is praktisch ingericht en voorzien van diverse inbouwapparatuur zoals een kookplaat, afzuigkap, koel vriescombinatie en vaatwasser. Vanuit de keuken is er toegang tot de badkamer en de serre. De badkamer is volledig betegeld en uitgerust met een inloopdouche, toilet, wastafelmeubel en vloerverwarming.
Eerste verdieping:
De overloop geeft toegang tot twee slaapkamers. De hoofdslaapkamer ligt aan de voorzijde en profiteert van veel daglicht dankzij de twee ramen. De rolluiken zorgen hier voor extra comfort en een goede nachtrust. Ook de tweede slaapkamer aan de achterzijde is voorzien van een rolluik.
Vliering:
Vanaf de overloop is via een vlizotrap de praktische vliering bereikbaar. Ideaal als extra bergruimte.
Tuin en berging:
De achtertuin is gelegen op het zuidoosten en biedt volop privacy. De royale serre is een absolute meerwaarde en verlengt het buitenseizoen aanzienlijk. Hier geniet je van lange ochtenden met een kop koffie of ontspannen avonden met een goed glas wijn. In de tuin staat tevens een vrijstaande stenen berging, perfect voor fietsen en opslag.
Bijzonderheden
– Oplevering in overleg
– Ruime en sfeervolle serre
– Elektrisch bedienbare rolluiken op de begane grond
– Handmatig bedienbare rolluiken op de eerste verdieping
– CV ketel op huurbasis
WoonhuisKenmerken
Overdracht
Bouwvorm
Indeling
Energie
Ik heb interesseNeem contact met mij op
Als u hier uw gegevens achterlaat, dan nemen wij contact met u op om u meer te vertellen over deze woning.

