Stad aan ’t Haringvliet – Het Gudseke 22
3243 BG, Stad aan 't Haringvliet
€ 440.000,- k.k.
WoonhuisOmschrijving
Stap binnen in jouw toekomstige thuis in Stad aan 't Haringvliet, gelegen in de kindvriendelijke woonwijk 'Havenstadt'. Hier wordt modern comfort gecombineerd met een vleugje landelijke charme. De woning beschikt over twee slaapkamers, maar op de zolderverdieping is er de mogelijkheid om het aantal kamers uit te breiden. Daarnaast is...
Stap binnen in jouw toekomstige thuis in Stad aan ’t Haringvliet, gelegen in de kindvriendelijke woonwijk ‘Havenstadt’. Hier wordt modern comfort gecombineerd met een vleugje landelijke charme. De woning beschikt over twee slaapkamers, maar op de zolderverdieping is er de mogelijkheid om het aantal kamers uit te breiden. Daarnaast is er HR++ glas, vloerverwarming op de begane grond én zijn er 12 zonnepanelen.
INDELING
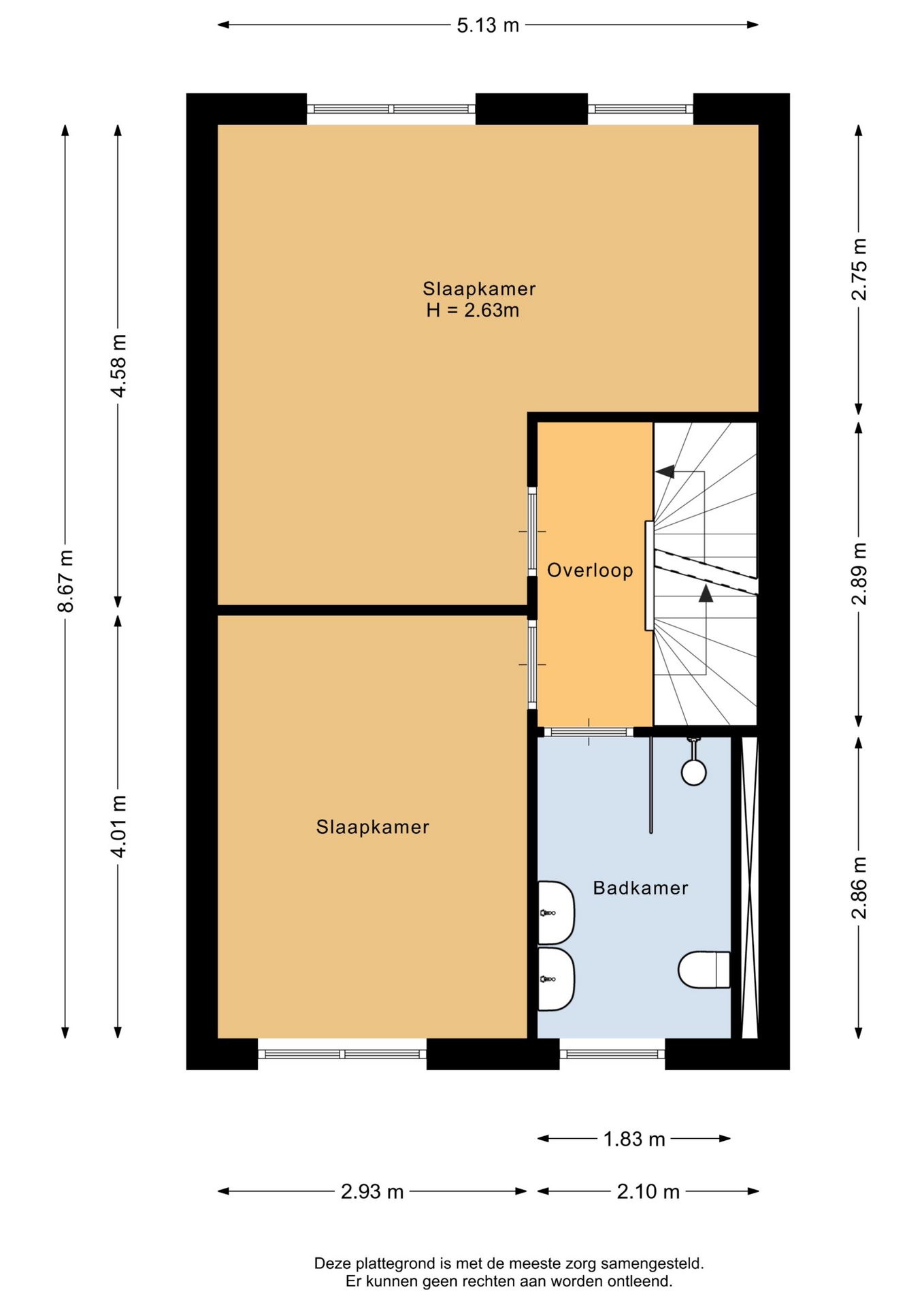
Begane grond:
Vanuit de entreehal, met meterkast en toilet, kom je in de woonkamer met open keuken. Aan de achterzijde komt een zee van licht de woonkamer binnen en door middel van de openslaande deuren is de achtertuin als het ware een verlengde van de woonkamer. Aan de voorzijde is de open keuken gelegen, voorzien van moderne apparatuur zoals kookplaat, afzuigkap, combimagnetron, oven, koelkast, vriezer en vaatwasser. De begane grond is voorzien van vloerverwarming.
Eerste verdieping:
De eerste verdieping herbergt de slaapkamers en de badkamer. Elk van de twee slaapkamers heeft voldoende ruimte. De badkamer is volledig betegeld en uitgerust met een inloopdouche, toilet en dubbele wastafel.
Zolderverdieping:
Op de ruime zolder staat een sauna opgesteld. Daarnaast biedt deze verdieping de kans om een extra slaapkamer, kantoor of hobbyruimte naar eigen wens in te richten. Er is een berging waar de CV-ketel is geplaatst.
Tuin & berging:
De achtertuin, gelegen op het noordoosten, heeft een sfeervolle pergola en borders met veel groen. De openslaande deuren van de woonkamer verbinden binnen met buiten. Hier is het heerlijk toeven in zowel klein als groter gezelschap. Achterin de tuin staat een berging opgesteld.
Bijzonderheden:
– Oplevering in overleg
– Vloerverwarming op de begane grond
– CV-ketel in samenwerking met warmtespaarpomp, aangesloten op het ventilatiesysteem
– 12 zonnepanelen
– HR++ glas
– Sauna op de zolderverdieping
