Ooltgensplaat – Molendijk 17
3257 AM, Ooltgensplaat
€ 525.000,- k.k.
WoonhuisOmschrijving
Gun jezelf een zeer fraaie woning mét uitstraling aan de Molendijk in Ooltgensplaat. De voorgevel met authentieke details verwijzen naar een rijk verleden. De woning is gelegen op een unieke locatie aan het water met royale tuin op het zuidoosten. De tuin beschikt over een overkapping en vergeet het heerlijke...
Gun jezelf een zeer fraaie woning mét uitstraling aan de Molendijk in Ooltgensplaat. De voorgevel met authentieke details verwijzen naar een rijk verleden. De woning is gelegen op een unieke locatie aan het water met royale tuin op het zuidoosten. De tuin beschikt over een overkapping en vergeet het heerlijke plekje aan het water niet.
INDELING
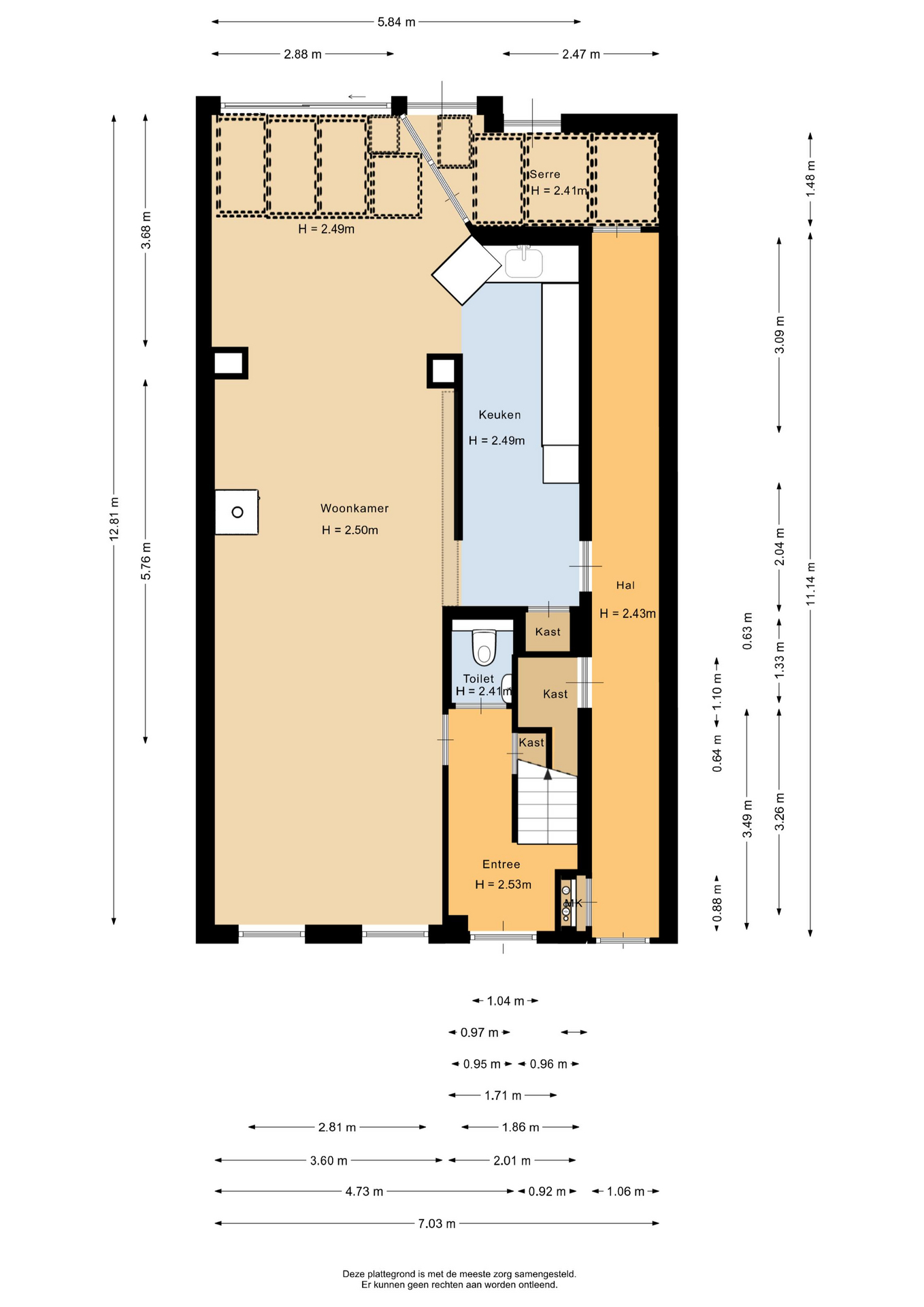
Begane grond:
Vanuit de entreehal, met meterkast en toilet, heb je toegang tot de woonkamer. De woonkamer heeft een sfeervolle houtkachel en is, samen met de keuken, vergroot door middel van een serre aan de achterzijde. Deze serre zorgt voor extra lichtinval in deze ruimtes. De open keuken is compleet met diverse apparatuur, zoals kookplaat, afzuigkap, oven, koelkast en vaatwasser. Rechts naast de voordeur is middels een lange gang de achterzijde van de woning toegankelijk.
Eerste verdieping:
De eerste verdieping heeft twee slaapkamers en een lichte badkamer. De masterbedroom ligt aan de voorzijde en de inbouwkast in deze kamer zorgt voor voldoende opbergruimte. De badkamer is geheel betegeld en voorzien van een ligbad, toilet, inloopdouche en wastafelmeubel.
Tweede verdieping:
Middels een vaste trap kom je op de tweede verdieping. Deze verdieping herbergt de derde slaapkamer, ideaal als gastenverblijf of studeerkamer. Ook is er een berging te vinden.
Tuin & berging:
De woning beschikt over twee bergingen, één is aangebouwd aan de woning en de andere berging staat achter in de tuin opgesteld. Ook is er een overkapping geplaatst. De groene en onderhouden achtertuin, gelegen op het zuidoosten, biedt voldoende ruimte voor plezier en ontspanning. Geniet van een zonnige dag in de tuin of kom helemaal tot rust op een plekje aan het water.
Bijzonderheden:
– Oplevering in overleg
– Authentiek pand
– Vloerverwarming op de begane grond
– Sfeervolle houtkachel in de woonkamer
– HR++ glas


