Achthuizen – Zandweg 10
3256 BC, Achthuizen
€ 1.065.000,- k.k.
WoonhuisOmschrijving
Welkom in deze prachtige vrijstaande villa! Ontsnap aan de drukte en beleef het ultieme woongenot in deze landelijk gelegen woning. Gelegen op een rustige plek met een schitterend uitzicht, biedt deze villa de perfecte combinatie van landelijke charme en modern comfort. Ideaal voor wie privacy, rust en ontspanning zoekt. De...
Welkom in deze prachtige vrijstaande villa! Ontsnap aan de drukte en beleef het ultieme woongenot in deze landelijk gelegen woning. Gelegen op een rustige plek met een schitterend uitzicht, biedt deze villa de perfecte combinatie van landelijke charme en modern comfort. Ideaal voor wie privacy, rust en ontspanning zoekt. De in 2021 gebouwde woning is omringd door een goed onderhouden tuin met zwembad, en het sfeervolle interieur is voorzien van duurzame voorzieningen zoals een warmtepomp en een warmteterugwinningssysteem.
INDELING
Welkom aan de Zandweg 10 in Achthuizen, een exclusieve vrijstaande villa waar rust, ruimte en comfort samenkomen in een aantrekkelijk totaalconcept. Hier woont u landelijk, met een gevoel van vrijheid en privacy, terwijl u geniet van modern wooncomfort en een hoogwaardige afwerking.
Stijlvol wonen met allure
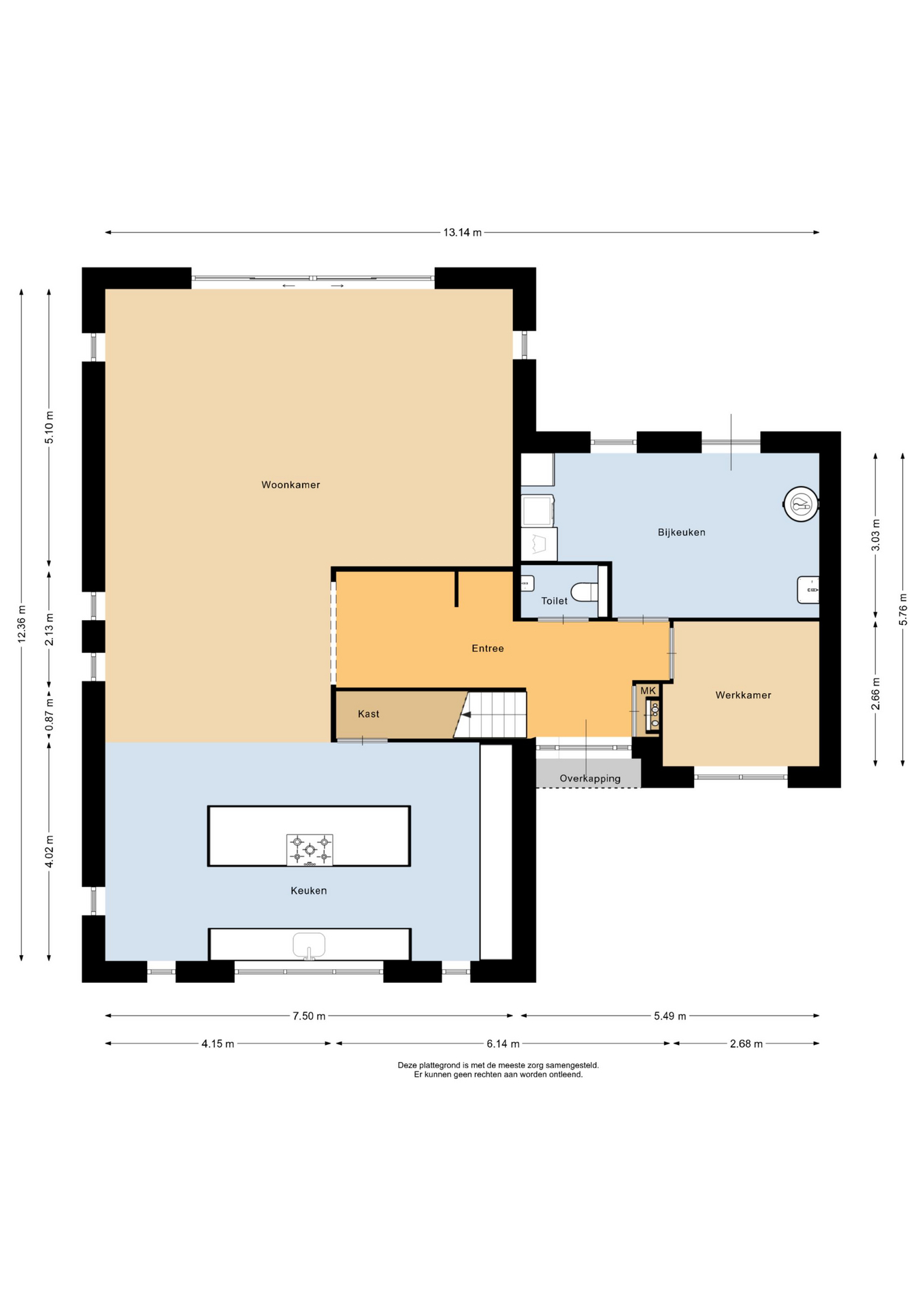
Bij aankomst valt direct de royale opzet op. De ruime oprit en verzorgde voortuin geven deze woning een representatieve uitstraling. Binnen wordt u ontvangen in een lichte entreehal die toegang biedt tot alle vertrekken. De woonkamer met open keuken vormt het centrale leefgebied, een plek waar licht en ruimte elkaar versterken. Grote raampartijen en de schuifpui zorgen voor een natuurlijke verbinding met de tuin en het zwembad, waardoor binnen en buiten in harmonie samenkomen.
De luxe open keuken met kookeiland is uitgevoerd met hoogwaardige apparatuur en een strak design. Hier bereidt u moeiteloos zowel dagelijkse maaltijden als uitgebreide diners, terwijl u in contact blijft met uw gezelschap.
Praktisch en toekomstgericht
De begane grond beschikt over een functionele bijkeuken en een volwaardige werkkamer. Ideaal voor thuiswerken of een eigen praktijkruimte. De gehele verdieping is voorzien van comfortabele vloerverwarming. Dankzij de aanwezigheid van een warmtepomp en warmteterugwinningssysteem is de woning bovendien energiezuinig en klaar voor de toekomst.
Comfortabele verdieping met luxe badkamer
Op de eerste verdieping bevinden zich drie slaapkamers. De master bedroom met inloopkast biedt een gevoel van luxe en rust. De badkamer is stijlvol ingericht en voorzien van dubbele regendouches, een dubbele wastafel met meubel en vloerverwarming. Een separate toiletruimte verhoogt het dagelijks comfort.
Buitenleven op topniveau
De zonnige achtertuin op het zuiden vormt een ware eyecatcher. Hier geniet u in alle privacy van een fraai aangelegd terras en een uitnodigend zwembad. De luxe overkapping met elektrisch bedienbare zonwering creëert een sfeervolle buitenruimte waar u al vroeg in het seizoen comfortabel kunt verblijven. Achterin de tuin bevindt zich een praktische berging.
De juiste balans
Zandweg 10 biedt een unieke combinatie van landelijke rust, moderne voorzieningen en een instapklare afwerking. Een woning die niet alleen voldoet aan uw woonwensen, maar deze overtreft.
Bent u op zoek naar een exclusieve villa waar u direct kunt genieten? Neem contact op voor een bezichtiging en ervaar zelf de kwaliteit en sfeer van deze bijzondere woning.
Bijzonderheden:
– Oplevering in overleg
– Moderne en luxe woning
– 12 zonnepanelen
– HR++ glas
– Warmtepomp en een warmteterugwinningssysteem
– Werkkamer op de begane grond
WoonhuisKenmerken
Overdracht
Bouwvorm
Indeling
Energie
Ik heb interesseNeem contact met mij op
Als u hier uw gegevens achterlaat, dan nemen wij contact met u op om u meer te vertellen over deze woning.

