Stellendam – Blazer 15
3251 PA, Stellendam
€ 370.000,- k.k.
WoonhuisOmschrijving
Kom binnen in deze nette tussenwoning in Stellendam, gelegen in een kindvriendelijke wijk. De woning is gebouwd in 1999 en beschikt, naast de woonkamer met open keuken, over totaal drie slaapkamers. De achtertuin, gelegen op het zuidoosten, is verzorgd en voorzien van een berging en overkapping. INDELING Begane grond: Middels...
Kom binnen in deze nette tussenwoning in Stellendam, gelegen in een kindvriendelijke wijk. De woning is gebouwd in 1999 en beschikt, naast de woonkamer met open keuken, over totaal drie slaapkamers. De achtertuin, gelegen op het zuidoosten, is verzorgd en voorzien van een berging en overkapping.
INDELING
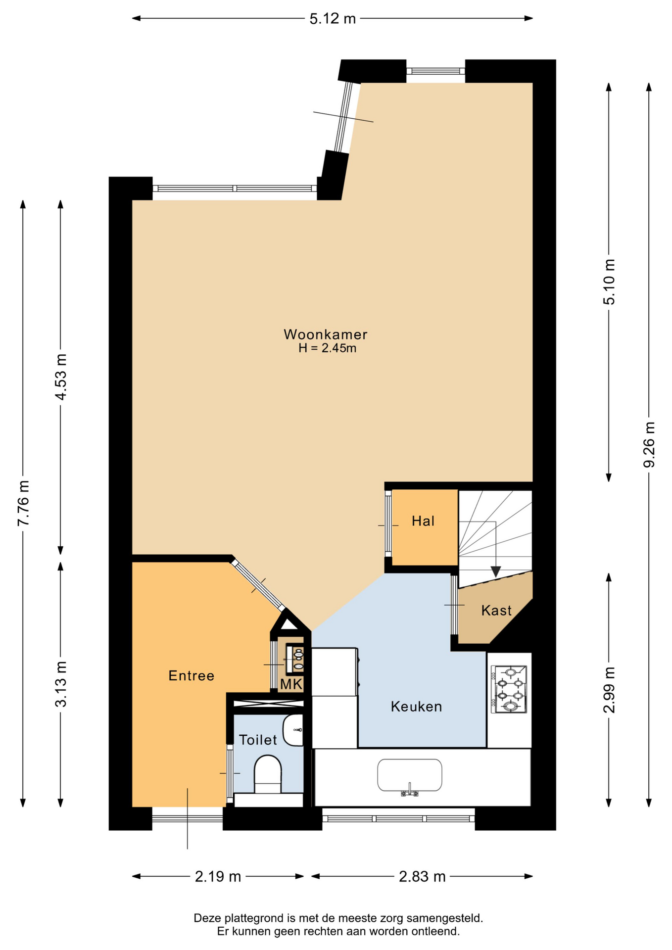
Begane grond:
Middels de entreehal, met meterkast en toilet, kom je in de woonkamer. De grote raampartijen aan de achterzijde zorgen voor veel lichtinval en vanuit de woonkamer stap je zo de achtertuin in. Aan de voorzijde is de open keuken gelegen, compleet met diverse inbouwapparatuur zoals kookplaat, afzuigkap, combi-oven, koelkast, vriezer en vaatwasser. De ruimtelijke indeling en afwerking van de begane grond zorgen voor een aangename leefruimte waar je je thuis zult voelen.
Eerste verdieping:
Op de eerste verdieping bevinden zich twee slaapkamers en een complete badkamer, uitgerust met toilet, douche en een wastafel.
Tweede verdieping:
Middels een vaste trap is de tweede verdieping bereikbaar. Hier is de derde slaapkamer gelegen en de ruimte achter de schotten biedt mogelijkheid om spullen op te bergen. Op de overloop bevinden zich de witgoedaansluitingen en hier is ook de CV-ketel geplaatst.
Tuin & berging:
De woning heeft een goed onderhouden tuin welke onderhoudsvriendelijk is aangelegd. De achtertuin, gelegen op het zuidoosten, is ideaal voor de zonliefhebbers en wil je liever in de schaduw zitten, dan is er een heerlijk plekje voor je onder de overkapping. Er is een achterom en vlakbij de woning is een speeltuintje gelegen.
Bijzonderheden:
– Oplevering in overleg
– Gelegen in een kindvriendelijke wijk
– Overkapping in de achtertuin


