Sommelsdijk – Willem Bilderdijkstraat 18
3245 RB, Sommelsdijk
€ 550.000,- k.k.
WoonhuisOmschrijving
Ruimte, licht en comfort komen hier moeiteloos samen. Deze verrassend royale eindwoning ligt op een centrale locatie en biedt met vijf slaapkamers alle ruimte voor een dynamisch gezinsleven. Een instapklare woning met een fijne flow, duurzame voorzieningen en een zonnige tuin op het zuiden. Dankzij de aanwezigheid van 8 zonnepanelen,...
Ruimte, licht en comfort komen hier moeiteloos samen. Deze verrassend royale eindwoning ligt op een centrale locatie en biedt met vijf slaapkamers alle ruimte voor een dynamisch gezinsleven. Een instapklare woning met een fijne flow, duurzame voorzieningen en een zonnige tuin op het zuiden. Dankzij de aanwezigheid van 8 zonnepanelen, volledige isolatie en HR++ glas woon je hier bovendien energiezuinig en toekomstbestendig.
INDELING
Begane grond:
Binnen valt direct de royale en lichte woonkamer op, met een oppervlakte van ca. 48 m² een heerlijke leefruimte voor elk moment van de dag. De open keuken sluit hier naadloos op aan en is praktisch ingericht. Dankzij de grote raampartijen en de openslaande deuren naar de tuin voelt het geheel licht en ruim aan, precies wat je zoekt in een moderne gezinswoning. De begane grond is voorzien van comfortabele vloerverwarming.
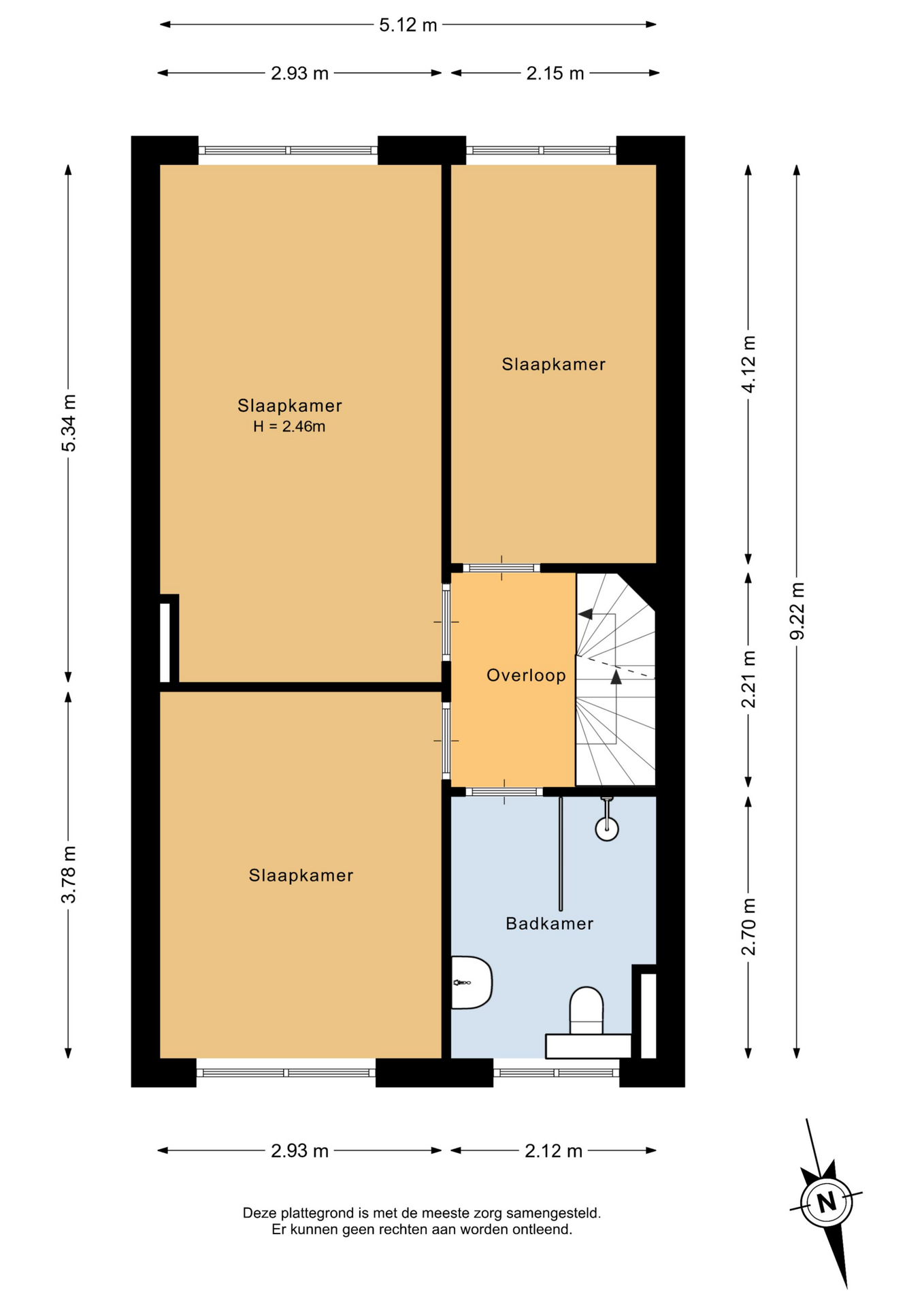
Eerste verdieping:
Op de eerste verdieping vind je drie comfortabele slaapkamers en een verzorgde badkamer. De badkamer is uitgerust met een inloopdouche, wastafelmeubel, designradiator en toilet, strak en functioneel ingericht voor dagelijks gebruik. Ook beschikt de badkamer over elektrische vloerverwarming.
Tweede verdieping:
Middels de vaste trap bereik je de tweede verdieping, deze verrast met nog eens twee extra slaapkamers voorzien van dakramen en dakkapel. Ideaal voor een groter gezin, thuiswerken of het creëren van een hobbyruimte. Daarnaast is er praktische bergruimte aanwezig.
Tuin & berging
De verzorgde achtertuin op het zuiden biedt volop zon en privacy, een fijne plek om te ontspannen of te genieten met vrienden en familie. De vrijstaande houten berging met sfeervolle overkapping maakt het geheel compleet en zorgt voor extra opslagruimte. De tuin is bereikbaar via een praktische achterom.
Bijzonderheden:
– Oplevering begin november 2026
– 8 zonnepanelen
– Volledig geïsoleerd en HR++ glas
– Beschikt over vloerverwarming op de begane grond en badkamer.
– Voorzien van buitenzonwering
– Vijf slaapkamers
WoonhuisKenmerken
Overdracht
Bouwvorm
Indeling
Energie
Ik heb interesseNeem contact met mij op
Als u hier uw gegevens achterlaat, dan nemen wij contact met u op om u meer te vertellen over deze woning.

