Dirksland – Honingeter 49
3247 GD, Dirksland
€ 525.000,- k.k.
WoonhuisOmschrijving
Welkom in deze charmante hoekwoning in een rustige woonwijk in Dirksland. Een woning waar comfort, licht en sfeer naadloos samenkomen en waar u zich vanaf het eerste moment thuis voelt. De praktische indeling sluit perfect aan op het moderne gezinsleven en biedt alles wat u zoekt. De lichte woonkamer met open...
Welkom in deze charmante hoekwoning in een rustige woonwijk in Dirksland. Een woning waar comfort, licht en sfeer naadloos samenkomen en waar u zich vanaf het eerste moment thuis voelt. De praktische indeling sluit perfect aan op het moderne gezinsleven en biedt alles wat u zoekt. De lichte woonkamer met open keuken vormt het hart van de woning, een fijne plek om samen te komen en te genieten. Met drie volwaardige slaapkamers beschikt u over alle ruimte voor het hele gezin. De buitenruimte op het oosten, compleet met overkapping, biedt een heerlijke setting om al vroeg op de dag van het buitenleven te genieten. Een plek waar wonen echt tot leven komt.
INDE
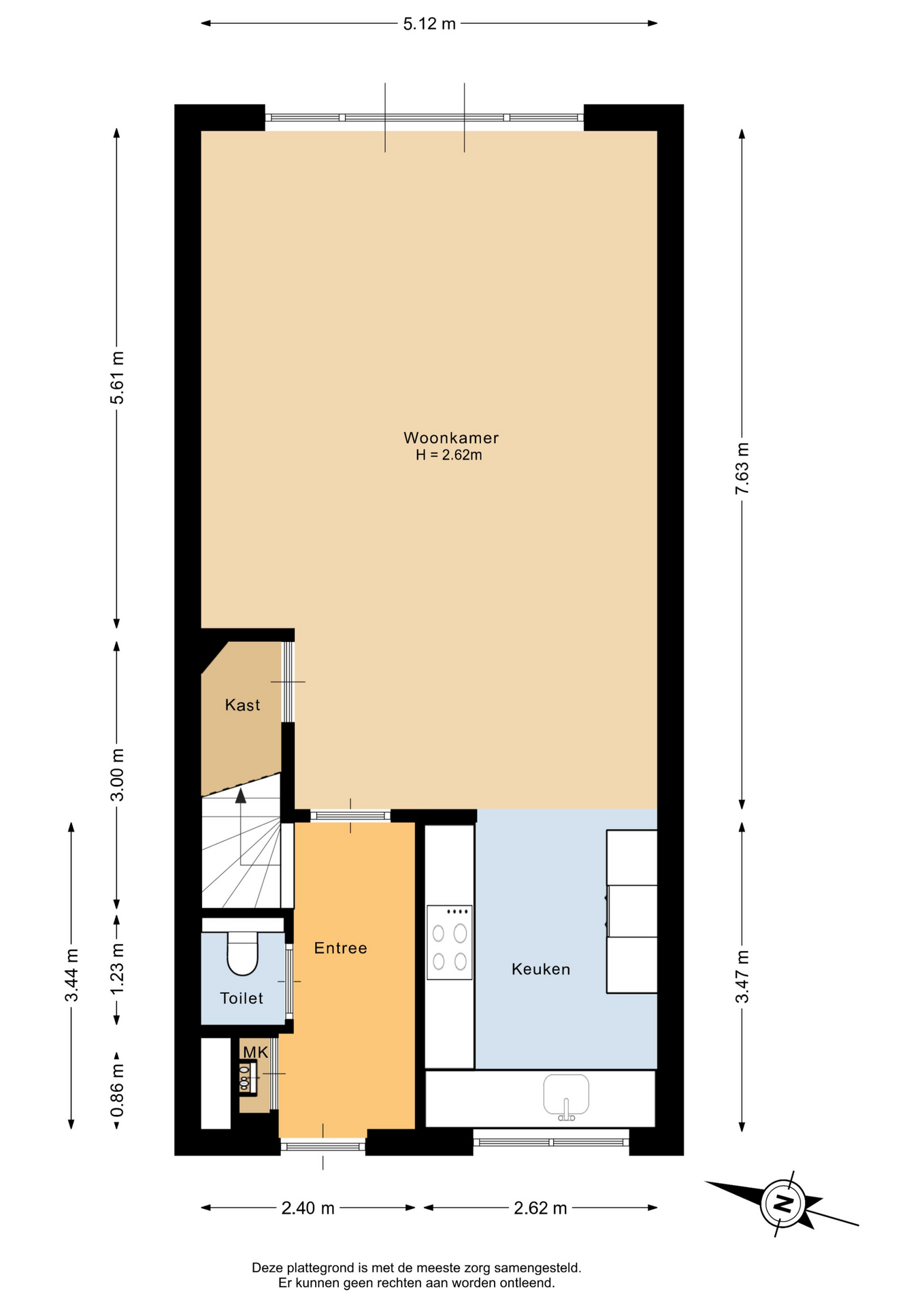
Begane grond:
Via de entree met meterkast en toilet betreedt u de woning. De lichte woonkamer vormt het hart van het huis. Dankzij de openslaande deuren naar de tuin geniet u hier van een prachtige lichtinval en een fijne verbinding met buiten.
Aan de voorzijde bevindt zich de moderne hoekkeuken die beschikt over veel bergruimte en is voorzien van diverse inbouwapparatuur. De gehele begane grond is afgewerkt met een comfortabele vloer voorzien van vloerverwarming, wat bijdraagt aan een aangenaam woonklimaat.
Eerste verdieping:
De overloop geeft toegang tot drie ruime en lichte slaapkamers, de badkamer en een vaste trap naar de tweede verdieping. De nette badkamer is compleet ingericht met een inloopdouche, een dubbele wastafel en een toilet. Ook deze verdieping is volledig voorzien van vloerverwarming, wat zorgt voor extra comfort.
Tweede verdieping:
Via een vaste trap bereikt u de tweede verdieping. Hier bevinden zich de aansluitingen voor witgoed en de CV-ketel. De ruimte biedt volop mogelijkheden, zoals het realiseren van een vierde slaapkamer of een werkruimte. Dankzij het aanwezige dakraam is er een prettige lichtinval.
Tuin, berging & overkapping:
In de verzorgde aangelegde achtertuin, gesitueerd op het oosten, ontvouwt zich een sfeervolle buitenruimte waar rust en comfort samenkomen. Onder de charmante overkapping ontstaat een uitnodigende plek om te ontspannen en te genieten van lange avonden. Achter in de tuin bevindt zich een praktische berging, perfect voor het netjes en efficiënt opbergen van uw spullen.
Bijzonderheden:
– Oplevering: in overleg
– Drie slaapkamers op de eerste verdieping
– Vloerverwarming op begane grond en eerste verdieping
– Ruime tuin met overkapping
– Gezellige en rustige woonwijk
– Voorzien van 8 zonnepanelen
WoonhuisKenmerken
Overdracht
Bouwvorm
Indeling
Energie
Ik heb interesseNeem contact met mij op
Als u hier uw gegevens achterlaat, dan nemen wij contact met u op om u meer te vertellen over deze woning.

