TYPE D APPARTEMENT

3252 BX Goedereede

€ 499.000,- v.o.n.

AppartementOmschrijving

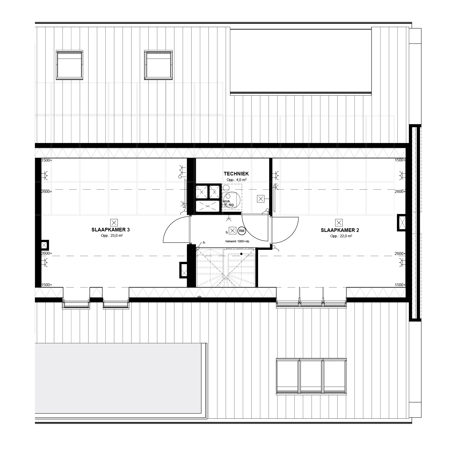
~ 4-kamerappartement ~ Woonoppervlak van ca. 158 m2 ~ 2 verdiepingen ~ Living van ca. 51,5 m2 ~ Loggia van ca. 14,5 m2 ~ Loggia op het zuiden ~ Badkamer en toilet voorzien van tegelwerk en sanitair ~ Warmtepomp en zonnepanelen ~ Eigen parkeerplaats

~ 4-kamerappartement
~ Woonoppervlak van ca. 158 m2
~ 2 verdiepingen
~ Living van ca. 51,5 m2
~ Loggia van ca. 14,5 m2
~ Loggia op het zuiden
~ Badkamer en toilet voorzien van tegelwerk en sanitair
~ Warmtepomp en zonnepanelen
~ Eigen parkeerplaats

AppartementKenmerken

Overdracht

Status
Verkocht
Koopprijs
€ 499.000,- v.o.n.

Bouwvorm

Objecttype
Appartement
Soort
Penthouse
Kenmerk
Appartement
Liggingen
In centrum, In woonwijk, Open ligging

Indeling

Inhoud
474 m3
Aantal kamers
5
Aantal slaapkamers
3
Aantal woonlagen
2

Energie

Isolatievormen
Dakisolatie, Muurisolatie, Vloerisolatie, Dubbelglas, Volledig geïsoleerd
Soorten verwarming
Warmtepomp
CV ketel combiketel
Nee

AFSPRAAK MAKEN?

Ik kan je alles over deze woning vertellen

Van Rossum Makelaardij
Van Rossum Makelaardij