Middelharnis – Eendrachtstraat 48
3241 CD, Middelharnis
Onder bod
BeleggingOmschrijving
Wonen en werken combineren? Dat kan! In het centrum van Middelharnis wordt u dit ruime winkel-/bedrijfspand met woning aangeboden. Op de begane grond, aan de voorzijde, bevindt zich het winkelpand. Aan de achterzijde is de ruime bedrijfsruimte gelegen. Boven het winkelpand is de woning gelegen, met dakterras op het zuiden....
Wonen en werken combineren? Dat kan! In het centrum van Middelharnis wordt u dit ruime winkel-/bedrijfspand met woning aangeboden. Op de begane grond, aan de voorzijde, bevindt zich het winkelpand. Aan de achterzijde is de ruime bedrijfsruimte gelegen. Boven het winkelpand is de woning gelegen, met dakterras op het zuiden.
INDELING BEDRIJFS-/WINKELPAND
Aan de voorzijde is een winkelpand gelegen met openslaande deuren aan de voorzijde. Achter in de winkelruimte is een kantoor. Aan de zijkant van het pand is de toegang tot een tweede winkelruimte. Vanuit deze ruimte is de achtergelegen bedrijfsruimte toegankelijk, bestaand uit een een magazijn, toilet en grote ruimte die geschikt is als garage of voor andere bedrijfsdoeleinden. Aan de zijkant is een garagedeur.
INDELING WONING
Eerste verdieping:
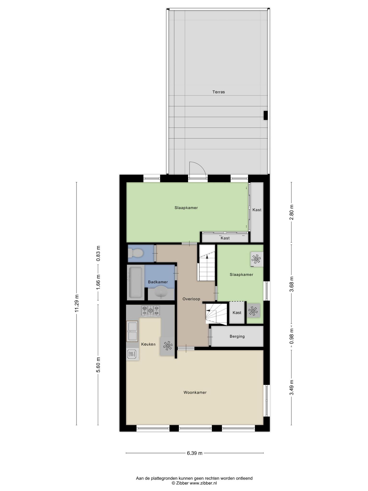
Via een vaste trap in het midden van de begane grond is de eerste verdieping bereikbaar. De overloop, met trapopgang naar de tweede verdieping, geeft toegang tot de woon-/eetkamer, keuken, twee slaapkamers, de badkamer, het toilet en een berging. De woon-/eetkamer is voorzien van een laminaatvloer, inbouwspots en grote raampartijen die voor veel lichtinval zorgen. Vanuit de woon-/eetkamer is de open keuken bereikbaar. De keuken, in U-opstelling, is voorzien van opbergruimte en diverse apparatuur: kookplaat, afzuigkap en oven. Links van de trap is de eerste slaapkamer bereikbaar. De slaapkamer is voorzien van een laminaatvloer. Aan de achterzijde van de woning is de grote slaapkamer gelegen. De slaapkamer is voorzien van twee grote vaste kasten, inbouwspots en een deur naar het dakterras. De geheel betegelde badkamer is voorzien van een ligbad, een wastafel met badmeubel, een designradiator en inbouwspots. Naast de badkamer is het toilet.
Tweede verdieping:
De overloop geeft toegang tot de derde slaapkamer en een ruime berging. De slaapkamer is voorzien van een laminaatvloer en een dakraam. Vanuit de slaapkamer is een tweede berging bereikbaar. Beide bergingen hebben een dakraam en kunnen ook gebruikt worden als kantoor of hobbyruimte.
Dakterras:
Het dakterras, bereikbaar vanuit de grote slaapkamer, is circa 40 m² groot en gelegen op het zuiden. Het is hier heerlijk vertoeven.
Bijzonderheden:
– Oplevering: In overleg
– Winkel-/bedrijfspand
– Woning op eerste verdieping
– Drie slaapkamers
– In het centrum
– Parkeervergunning nodig om in de straat te parkeren (2 aan te vragen)
BeleggingKenmerken
Overdracht
Bouwvorm
Indeling
Ik heb interesseNeem contact met mij op
Als u hier uw gegevens achterlaat, dan nemen wij contact met u op om u meer te vertellen over dit object.

