De Boagerd tussenwoning
3245 VC Sommelsdijk
€ 435.000,- v.o.n.
WoonhuisOmschrijving
Is de stap naar een appartement voor u te groot, maar u wilt wél graag de gemakken hebben van gelijkvloers wonen? Dit kan nu in 1 van deze 4 levensloopbestendige woningen die in Sommelsdijk worden gebouw. In het nieuwbouwproject "De Boagerd" worden vier woningen gebouwd in een hofje op een...
Is de stap naar een appartement voor u te groot, maar u wilt wél graag de gemakken hebben van gelijkvloers wonen?
Dit kan nu in 1 van deze 4 levensloopbestendige woningen die in Sommelsdijk worden gebouw.
In het nieuwbouwproject “De Boagerd” worden vier woningen gebouwd in een hofje op een rustige locatie. Gelegen aan de Dorpsweg, met een ontsluiting naar de Zuidelijke Achterweg in Sommelsdijk.
In dit Hofje dat gerealiseerd wordt, worden woningen gebouwd met alle voorzieningen op de begane grond. Tevens worden deze woningen gasloos uitgevoerd. De woningen worden gebouwd door Bouwbedrijf P. van den Boogert & Zn.
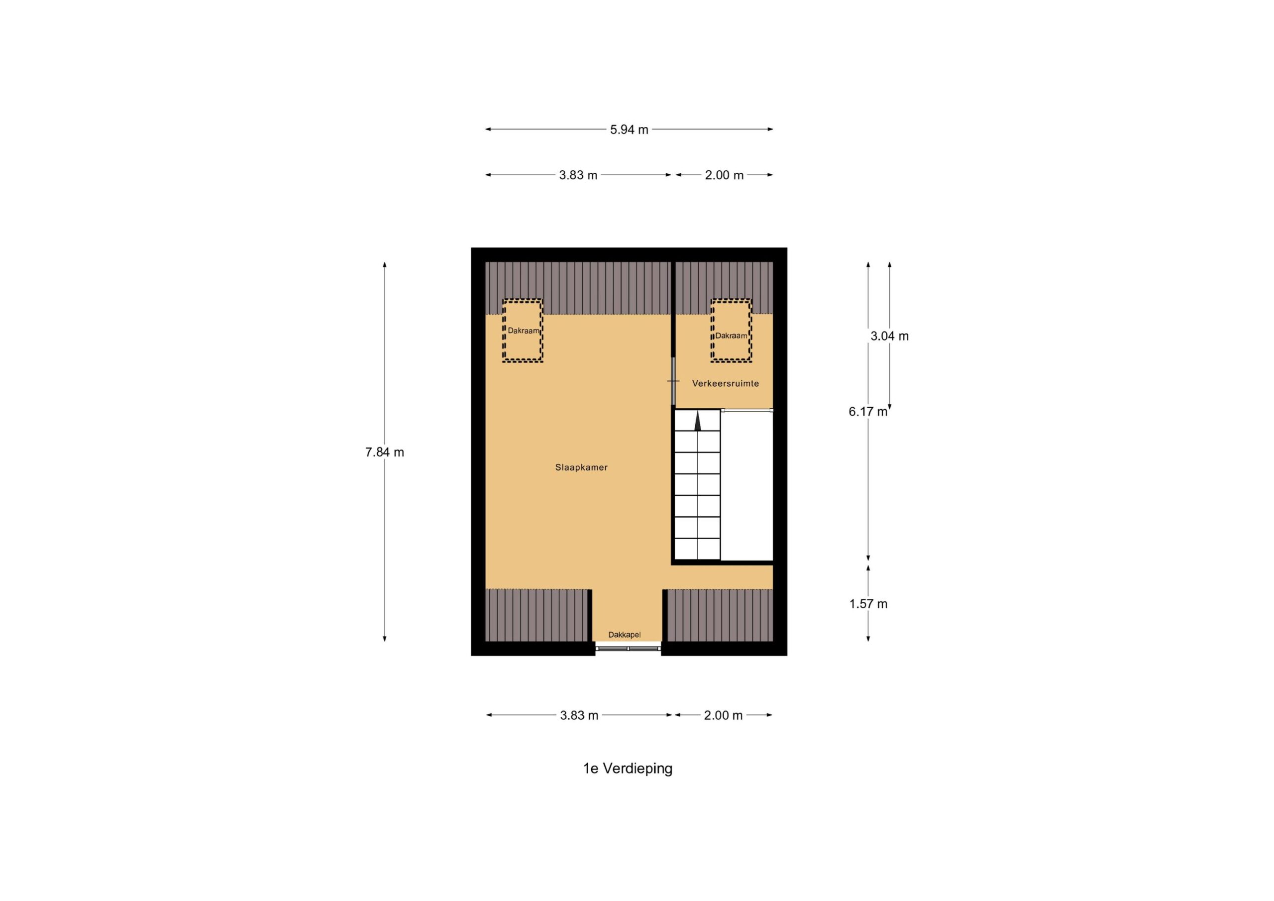
De vier levensloopbestendige woningen zijn modern vormgegeven door Studio Architecture uit Middelharnis en zijn voorzien van onder andere een woonkamer, open keuken, slaapkamer en badkamer op de begane grond. Op de eerste verdieping zijn één of twee slaapkamers aanwezig. De achtertuin is gelegen op het zuiden.
De woningen worden aangeboden inclusief sanitair en tegelwerk dat door Bouwcenter Esselink uit Middelharnis wordt geleverd.
Bij de aankoop van de woning ontvangt u een keukencheque te besteden bij Tieleman keukens te Middelharnis t.w.v. € 3.000,- inclusief BTW.
Wilt u voor meer informatie een afspraak met onze makelaar?
Neem dan contact met ons op via nummer 0187-486343 voor het maken van een afspraak.
Bijzonderheden:
– Start bouw: 2e kwartaal 2023
– Oplevering: begin 2024
– Levensloopbestendige woning


