Herkingen – 1 februariweg 9
3249 BK, Herkingen
€ 395.000,- k.k.
WinkelruimteOmschrijving
In het sfeervolle Herkingen, op korte afstand van de haven, mogen wij u deze zeer royale bedrijfs- en winkelruimte aanbieden. Een locatie met uitstekende mogelijkheden voor ondernemers die ruimte, zichtbaarheid en functionaliteit zoeken. Het pand is beschikbaar voor zowel koop als huur. De ruimte beschikt over een oppervlakte van 543...
In het sfeervolle Herkingen, op korte afstand van de haven, mogen wij u deze zeer royale bedrijfs- en winkelruimte aanbieden. Een locatie met uitstekende mogelijkheden voor ondernemers die ruimte, zichtbaarheid en functionaliteit zoeken. Het pand is beschikbaar voor zowel koop als huur.
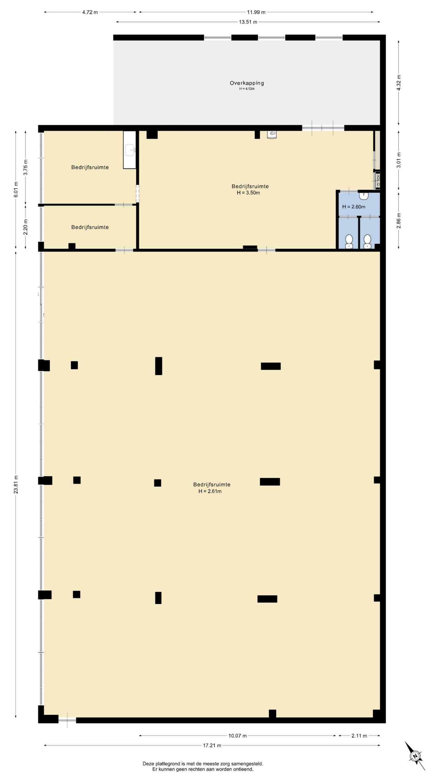
De ruimte beschikt over een oppervlakte van 543 m² en kenmerkt zich door een gevel met veel raampartijen, wat zorgt voor een prettige lichtinval en een open uitstraling. Dit maakt het pand uitermate geschikt voor diverse bedrijfsactiviteiten, showroomruimte of detailhandel.
Daarnaast is het pand praktisch ingericht en goed bereikbaar voor vrachtverkeer, waardoor laden en lossen eenvoudig kan plaatsvinden. De combinatie van ruimte, licht en bereikbaarheid maakt dit een interessante kans voor ondernemers die hun bedrijf op een goed bereikbare locatie willen vestigen.
Bijzonderheden:
– Huurprijs € 3000,00 per maand
– Toegang voor een vrachtwagen
– Veel lichtinval door de grote raampartijen
– Energielabel A
– Op loopafstand van de haven
– Maandelijkse VVE kosten: € 476,93
WinkelruimteKenmerken
Overdracht
Bouwvorm
Indeling
Ik heb interesseNeem contact met mij op
Als u hier uw gegevens achterlaat, dan nemen wij contact met u op om u meer te vertellen over dit object.

