Stellendam – Mr Iman Caustraat 79
3251 AP, Stellendam
€ 445.000,- k.k.
WoonhuisOmschrijving
Ontdek deze unieke, vrijstaande kluswoning aan de Mr Iman Caustraat 79 in Stellendam! De woning is voorzien van een ruime woonkamer, een open keuken en twee slaapkamers. De zeer ruime tuin, van circa 1500 m², is rondom de woning gelegen. Met veel liefde en aandacht kun je deze vrijstaande woning...
Ontdek deze unieke, vrijstaande kluswoning aan de Mr Iman Caustraat 79 in Stellendam! De woning is voorzien van een ruime woonkamer, een open keuken en twee slaapkamers. De zeer ruime tuin, van circa 1500 m², is rondom de woning gelegen. Met veel liefde en aandacht kun je deze vrijstaande woning transformeren tot je droomwoning!
INDELING
Begane grond:
De entreehal, met meterkast en trapopgang, geeft toegang tot de woon-/eetkamer en de keuken. De ruime woonkamer is voorzien van een schouw met gaskachel en een authentiek balkenplafond. In het verlengde van de woonkamer is de eetkamer gesitueerd. De raampartijen aan voor- en achterzijde zorgen voor veel natuurlijk lichtinval. Vanuit de eetkamer is de open keuken bereikbaar. Ook hier zorgen ramen voor veel lichtinval. Vanuit de keuken is de achtergelegen hal bereikbaar. De hal geeft toegang tot de badkamer, het toilet en de tuin. De badkamer is voorzien van een ligbad en een wastafel.
Eerste verdieping:
De ruime overloop geeft toegang tot de twee slaapkamers. De slaapkamer aan de voorzijde is geschikt als slaapkamer met inloopkast of kantoor of eventueel te splitsen in twee slaapkamers.
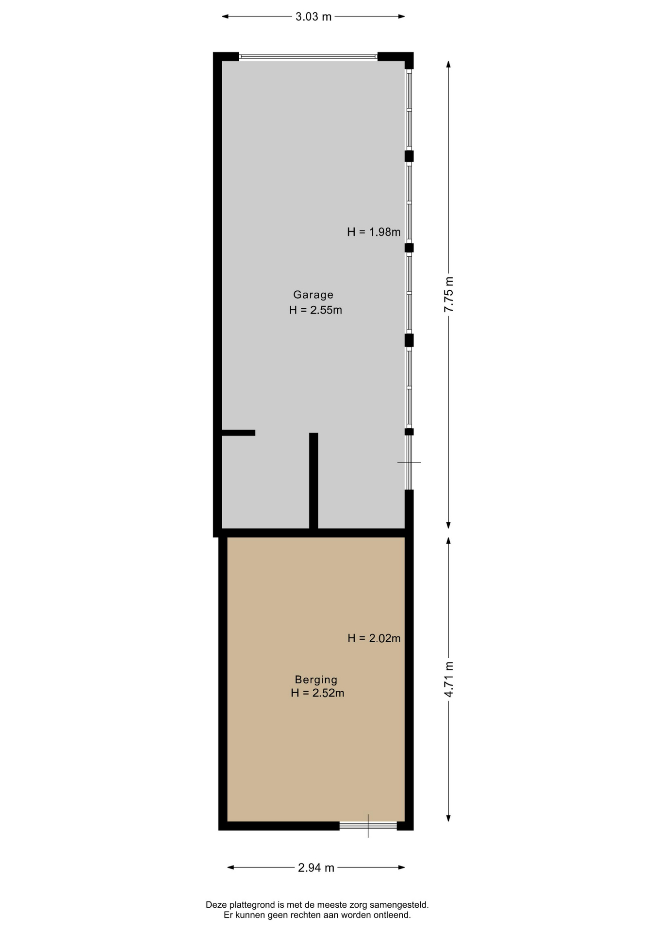
Tuin, garage & berging:
De woning beschikt over een zeer ruime tuin van circa 1500 m², welke rondom gelegen is. De achtertuin, gelegen op het zuidoosten, is voorzien van diverse bomen en struiken, een groot gazon, een houten garage en een stenen berging. De ruime tuin biedt volop mogelijkheden. Naast de woning is voldoende ruimte om meerdere auto’s te parkeren op eigen terrein.
Bijzonderheden
– Woning wordt gekocht zoals hij “as is where is”
– Overdracht via Moerland Notaris
– Geheel te renoveren woning
– Zeer ruime tuin rondom
– Dicht bij scholen en supermarkten


