Stellendam – Dreef 3
3251 AD, Stellendam
€ 480.000,- k.k.
WoonhuisOmschrijving
In een gezellige buurt in Stellendam mogen we u deze levensloopbestendige woning met garage aanbieden. De geschakelde woning, gelegen op een perceel van 230 m², is voorzien van een gezellige woon-/eetkamer een open keuken, een slaapkamer en badkamer op de begane grond. Op de eerst verdieping zijn twee slaapkamers en...
In een gezellige buurt in Stellendam mogen we u deze levensloopbestendige woning met garage aanbieden. De geschakelde woning, gelegen op een perceel van 230 m², is voorzien van een gezellige woon-/eetkamer een open keuken, een slaapkamer en badkamer op de begane grond. Op de eerst verdieping zijn twee slaapkamers en een tweede badkamer. De tuin is gelegen op het noordoosten.
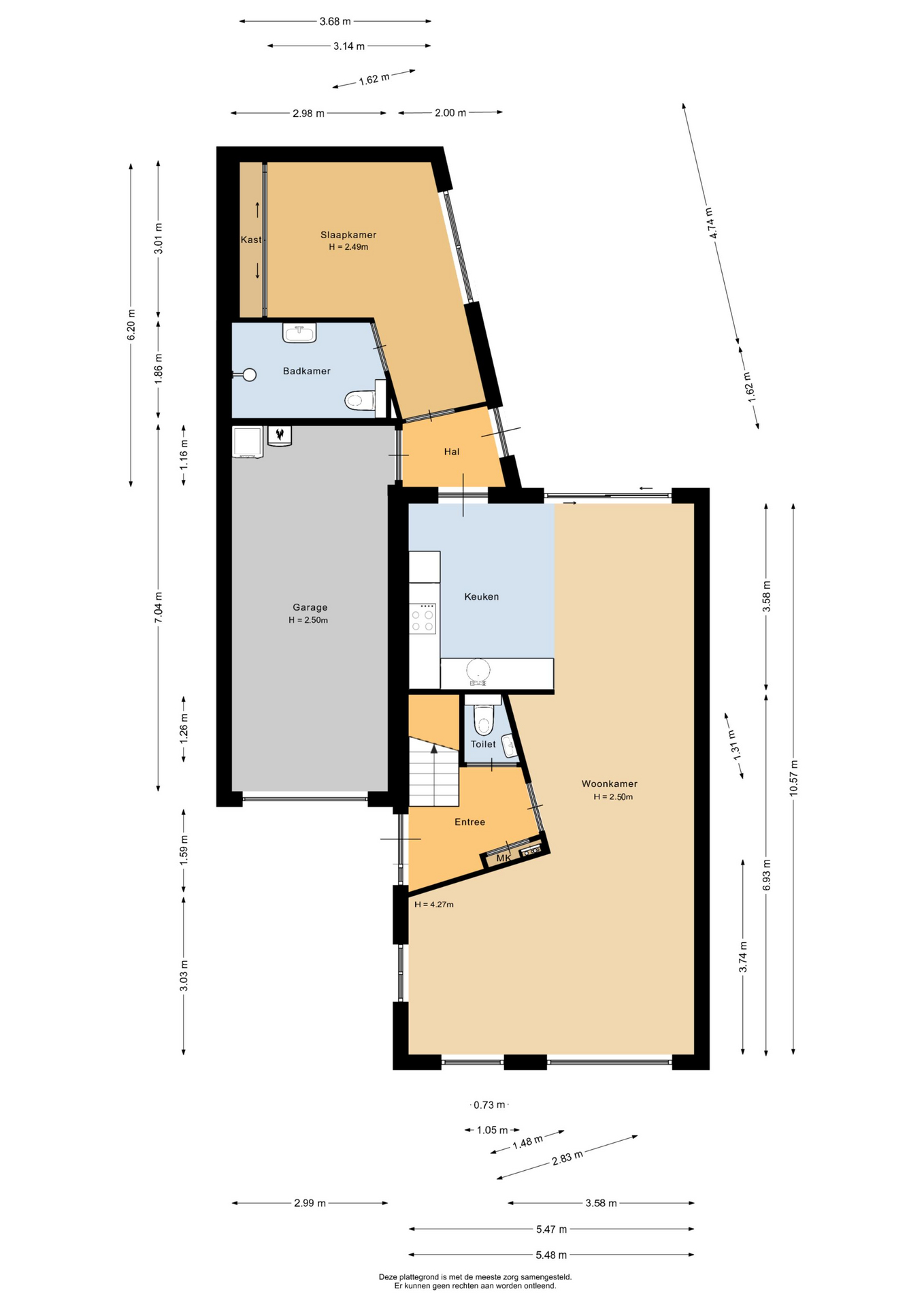
INDELING
Begane grond:
De entreehal, met trapopgang, toilet en meterkast, geeft toegang tot de woon-/eetkamer en de keuken. De woonkamer, aan de voorzijde gelegen, is voorzien van vloerbedekking. De grote raampartijen zorgen voor veel natuurlijke lichtinval. In het verlengde van de woonkamer is de eetkamer gesitueerd, met aansluitend de open keuken. De ruime hoekkeuken, met plavuizen vloer en schuifpui naar de tuin, is voorzien van veel opbergruimte en diverse apparatuur: kookplaat, afzuigkap, oven, koelkast, vriezer en vaatwasser.
Vanuit de keuken is de achtergelegen hal bereikbaar. De hal geeft toegang tot de slaapkamer, de garage en de tuin. De slaapkamer is voorzien van een laminaatvloer, een vaste kast en een deur naar de badkamer. De geheel betegelde badkamer is voorzien van een royale douche, een wastafel met meubel, een toilet, een designradiator en inbouwspots.
Eerste verdieping:
De overloop geeft toegang tot de twee overige slaapkamers, de tweede badkamer en een berging. De slaapkamer zijn ruim en licht en voorzien van vloerbedekking. De royale, geheel betegelde badkamer is voorzien van een groot ligbad met douchegelegenheid, een wastafel, een toilet en een radiator.
Tuin & Garage:
De achtertuin, gelegen op het noordoosten, is voorzien van bestrating, een vlonder en borders met allerlei planten, struiken en bomen. Het is hier heerlijk vertoeven. Links van de woning is de garage gelegen. In de garage vindt u de CV-ketel en de witgoedaansluitingen. Voor de garage kunt u uw auto parkeren op eigen terrein.
Bijzonderheden:
– Oplevering: in overleg
– Levensloopbestendige woning met garage
– Slaapkamer en badkamer op de begane grond
– Twee slaapkamers en een tweede badkamer op de eerste verdieping


