Oude-Tonge – Wilhelminastraat 4
3255 BR, Oude-Tonge
€ 375.000,- k.k.
WoonhuisOmschrijving
Betreed deze leuke 2-onder-1 kap woning, gelegen in de rustige Wilhelminastraat te Oude-Tonge. Deze mooie woning uit 1957 wekt meteen een huiselijk gevoel op. De tuin, aan drie zijden, biedt je alle vrijheid en veel zon dankzij de oostelijke ligging, perfect voor de tuinliefhebbers. Daarnaast beschikt de woning over drie...
Betreed deze leuke 2-onder-1 kap woning, gelegen in de rustige Wilhelminastraat te Oude-Tonge. Deze mooie woning uit 1957 wekt meteen een huiselijk gevoel op. De tuin, aan drie zijden, biedt je alle vrijheid en veel zon dankzij de oostelijke ligging, perfect voor de tuinliefhebbers. Daarnaast beschikt de woning over drie slaapkamers, 8 zonnepanelen en in de tuin een berging, overkapping en vijver.
INDELING
Begane grond:
Middels de entreehal, met toilet, kom je in de doorzonwoonkamer. De grote raampartijen aan zowel de voor- en achterzijde geven de woonkamer een ruimtelijk gevoel. De open keuken is aan de achterzijde gelegen en compleet met kookplaat, afzuigkap, combi-oven, koel-vriescombinatie en vaatwasser. Vanuit de keuken heb je toegang tot de achtertuin.
Eerste verdieping:
Op de eerste verdieping vind je drie comfortabele slaapkamers en een goed uitgeruste badkamer met toilet, wastafel, inloopdouche en designradiator. Het is een perfecte ruimte om te ontspannen en tot rust te komen na een lange dag.
Tweede verdieping:
Een vaste trap brengt je op de tweede verdieping. De verdieping is momenteel in gebruik als wasruimte, maar kan naar wens worden ingericht – als bergruimte, speelkamer of hobbykamer. De dakkapel creëert hier meer comfort.
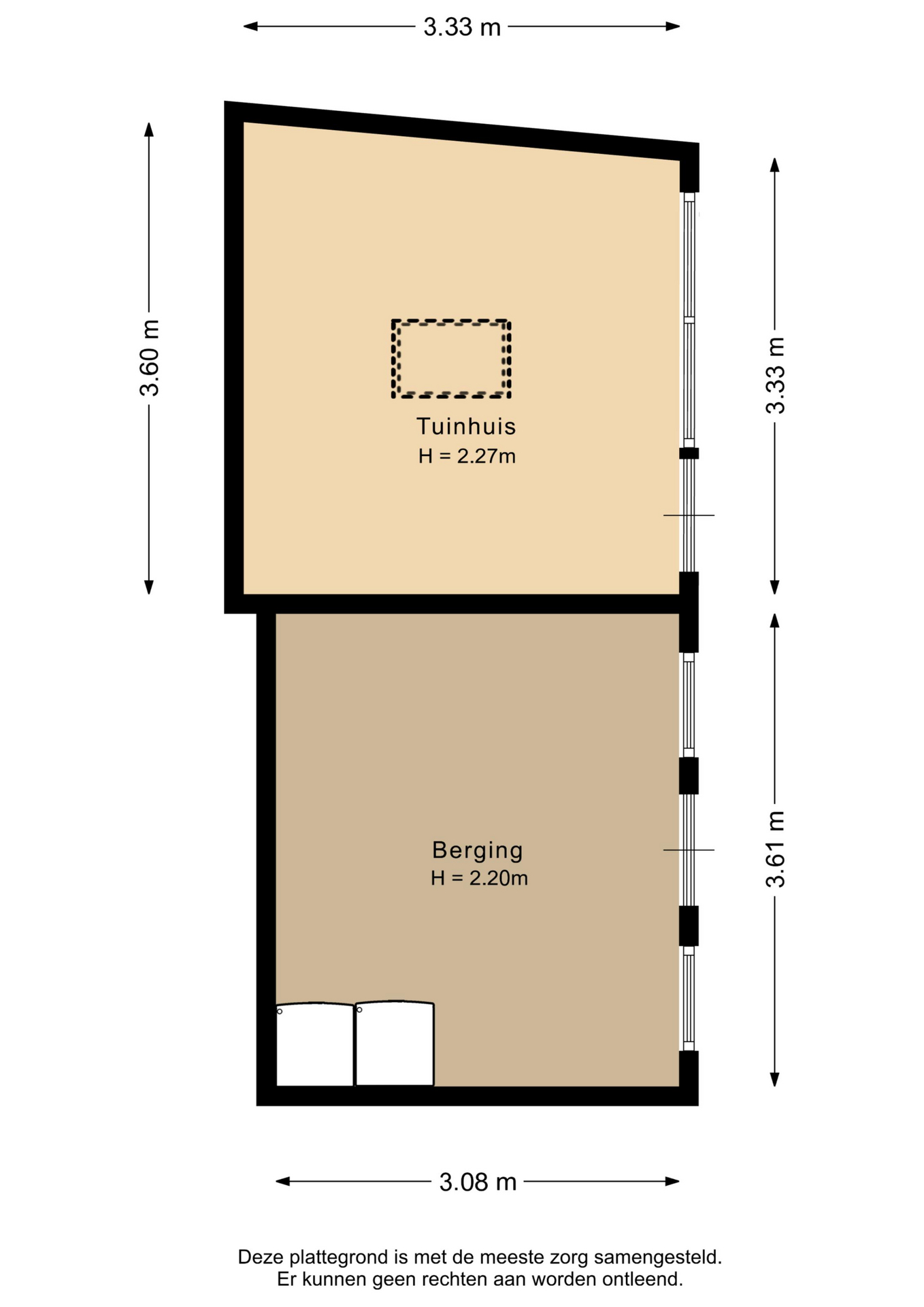
Tuin & berging:
Geniet van de buitenruimte die deze woning biedt. Met de achtertuin op het oosten heb je al snel een heerlijk plekje gevonden. In de achtertuin staat een vrijstaande stenen berging, een overkapping en is een vijver geplaatst. Al met al is het geheel fraai en verzorgd aangelegd, wat een toegevoegde waarde is aan de woning.
Bijzonderheden:
– Oplevering in overleg
– 8 zonnepanelen
– Fraai aangelegde tuin
– Vloerverwarming op de begane grond en in de badkamer
