Oude-Tonge – Kaai 17
3255 AG, Oude-Tonge
€ 375.000,- k.k.
WoonhuisOmschrijving
Stap binnen in deze woning uit 1900, gelegen aan de Kaai in Oude-Tonge. Met uitzicht op de gezellige haven is dit een unieke plek voor de waterliefhebber en een hapje eten kan bij enkele restaurants 'om de hoek'. De royale inpandige garage aan de achterzijde biedt mogelijkheden voor bijvoorbeeld klussers...
Stap binnen in deze woning uit 1900, gelegen aan de Kaai in Oude-Tonge. Met uitzicht op de gezellige haven is dit een unieke plek voor de waterliefhebber en een hapje eten kan bij enkele restaurants ‘om de hoek’. De royale inpandige garage aan de achterzijde biedt mogelijkheden voor bijvoorbeeld klussers en doe-het-zelvers. De woning met dakterras is naar eigen wens te moderniseren en in te richten.
INDELING
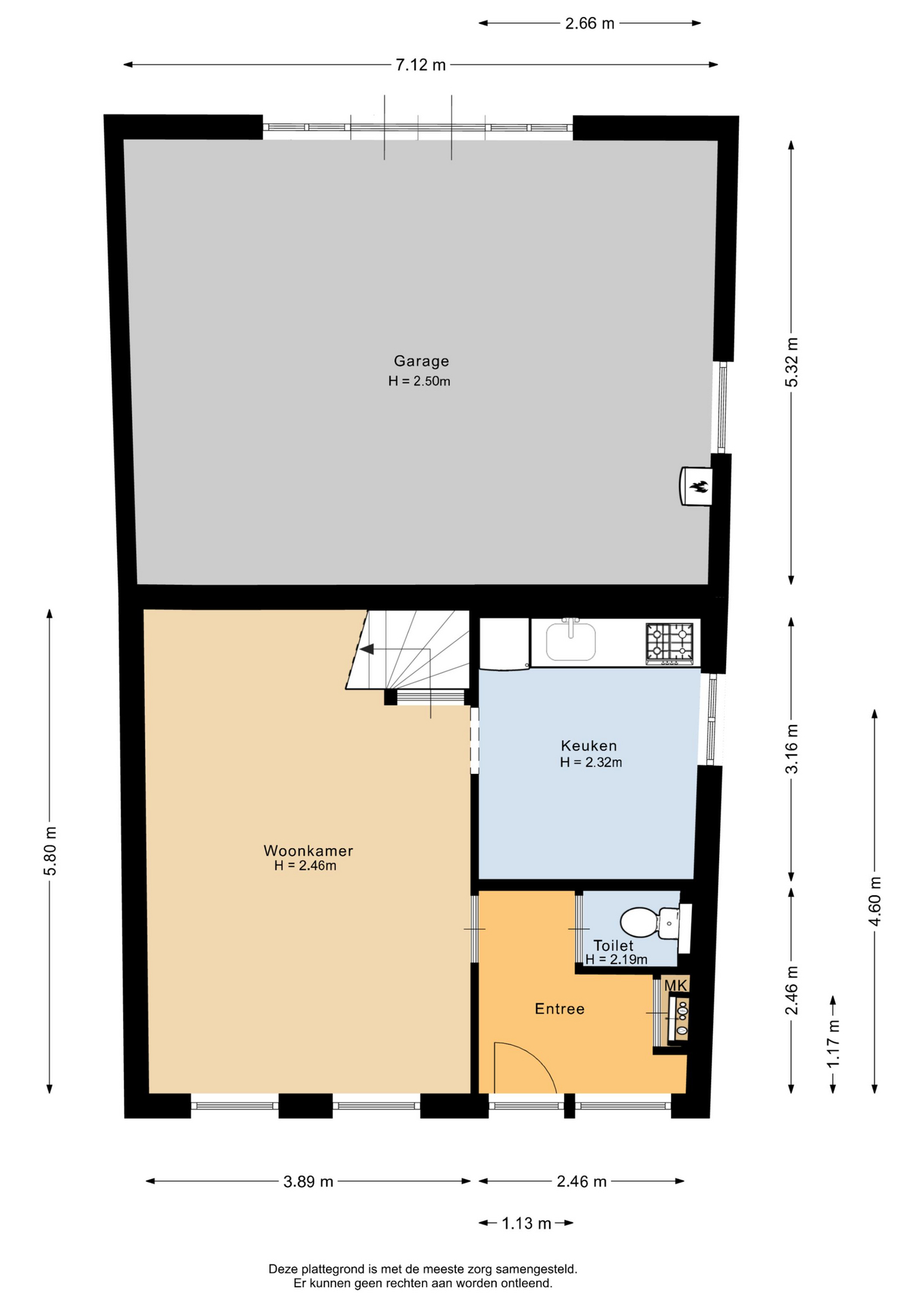
Begane grond:
De entreehal, met meterkast en toilet, biedt toegang tot de woonkamer waar de authentieke balken en vloer zichtbaar zijn. Grenzend aan de woonkamer is de keuken gesitueerd. Vanuit de woonkamer is er toegang naar de eerste verdieping.
Eerste verdieping:
Op de eerste verdieping bevinden zich twee van de drie slaapkamers en een badkamer. De badkamer is compleet betegeld en voorzien van een toilet, een wastafel en een inloopdouche. De voorste slaapkamer is ruimtelijk door het hoge balkenplafond welke doorloopt tot de nok. Momenteel wordt deze ruimte als extra woonkamer gebruikt. Ook is het mogelijk meerdere slaapkamers van deze ruimte te maken.
Tweede verdieping:
Middels een vaste trap kom je op de tweede verdieping waar de derde slaapkamer zich bevindt. Vanuit deze slaapkamer is er toegang tot het dakterras, gelegen op het oosten. Genieten van de zon met uitzicht op de haven, wie wil dit niet?
Tuin & garage:
De voortuin is gelegen op het zuiden en biedt een leuk uitzicht op de omliggende omgeving en de haven. Aan de achterzijde van de woning, bereikbaar via de achtergelegen weg, is een ruime garage bereikbaar. Zoek jij een woning met hobby- of werkruimte en parkeer jij je auto graag binnen? Dan is deze woning iets voor jou! Het is eventueel ook mogelijk de woonruimte op de begane grond uit te breiden door de garage hierbij de betrekken.
Bijzonderheden:
– Oplevering in overleg
– Royale inpandige garage
– Dakterras op het oosten
– Met uitzicht op de haven
– Op loopafstand van winkelcentrum
– Parkeergelegenheid voor de deur

