Middelharnis – Sluuslaan 34
3241 SL, Middelharnis
€ 379.000,- k.k.
WoonhuisOmschrijving
Op een rustig park in Middelharnis mogen we u deze vrijstaande woning aanbieden. De woning, gelegen op een perceel van 247 m², heeft een gezellige woon-/eetkamer, een open keuken en drie slaapkamers. De tuin, rondom de woning gelegen, is aan de achterzijde gelegen aan het water. INDELING Begane grond: De...
Op een rustig park in Middelharnis mogen we u deze vrijstaande woning aanbieden. De woning, gelegen op een perceel van 247 m², heeft een gezellige woon-/eetkamer, een open keuken en drie slaapkamers. De tuin, rondom de woning gelegen, is aan de achterzijde gelegen aan het water.
INDELING
Begane grond:
De entreehal, met toilet, meterkast en trapopgang, geeft toegang tot de woon-/eetkamer en de keuken. De woonkamer is aan de voorzijde gelegen en voorzien van een plavuizen vloer en openslaande deuren naar de tuin. De grote raampartijen zorgen voor veel lichtinval. Aan de achterzijde van de woning is de eetkamer gesitueerd. De eetkamer is eveneens voorzien van een plavuizen vloer en openslaande deuren naar de tuin. Vanuit de eetkamer is de keuken bereikbaar. De open keuken is voorzien van opbergruimte en diverse inbouwapparatuur: kookplaat, afzuigkap, koelkast en vaatwasser. Vanuit de woonkamer is de naastgelegen bijkeuken bereikbaar. In de bijkeuken vindt u de CV-ketel, de witgoedaansluitingen en een deur naar de tuin.
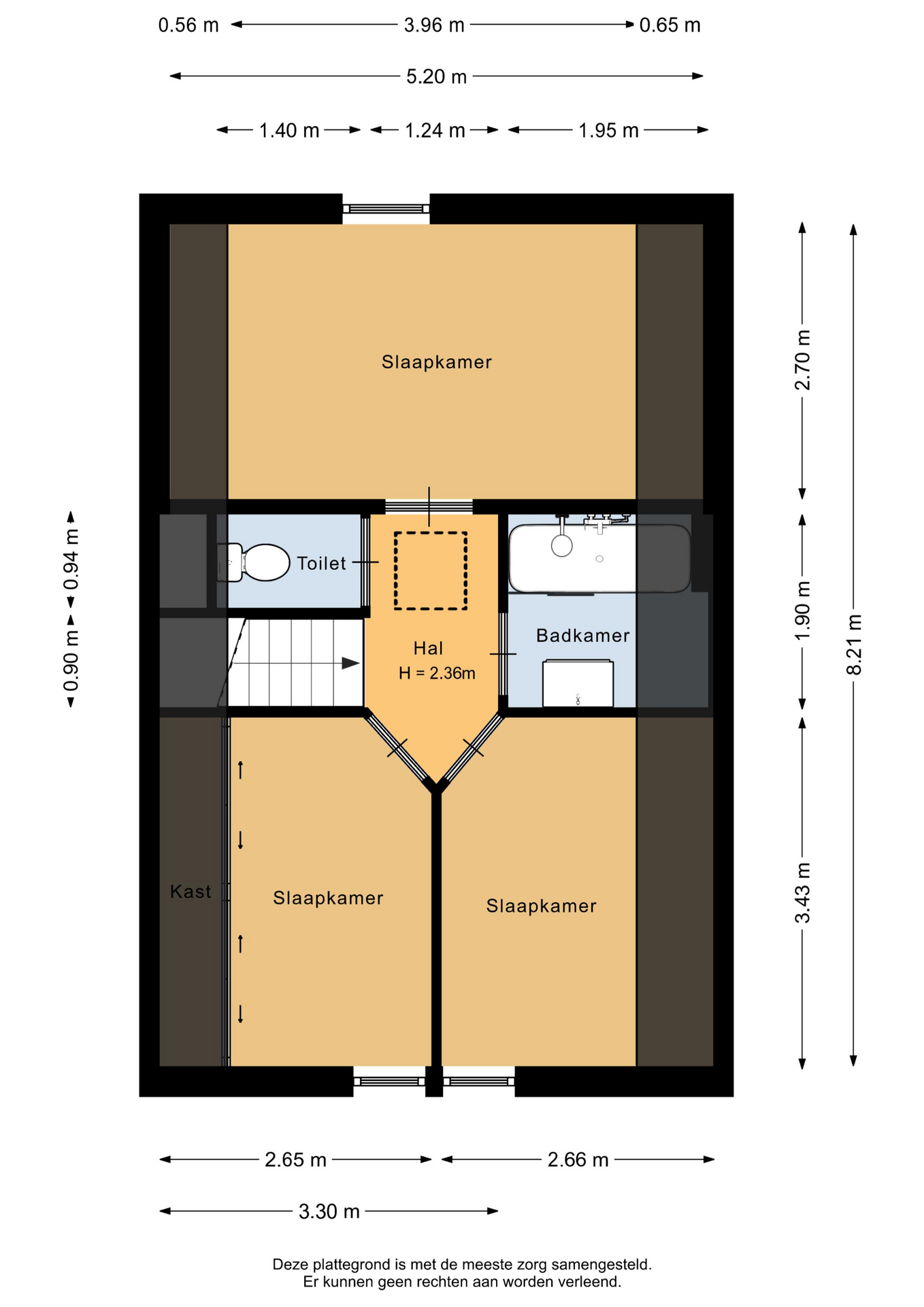
Eerste verdieping:
De overloop geeft toegang tot de drie slaapkamers, de badkamer en een separaat toilet. De slaapkamers zijn voorzien van een laminaatvloer. De slaapkamer links vooraan is voorzien van een vaste kast. De badkamer is geheel betegeld en voorzien van een ligbad met douchegelegenheid, een wastafel en een dakraam.
Vliering:
De vliering is vanaf de overloop bereikbaar middels een vlizotrap.
Tuin & Berging:
De tuin is rondom de woning gelegen. De achtertuin, gelegen op het zuidwesten, is voorzien van een terras, een berging, borders met planten en struiken en een vlonder met mooi hekwerk er omheen. Het is hier heerlijk vertoeven. Naast het vlonder is een trap naar het een lagergelegen gedeelte en het water.
Bijzonderheden:
– Oplevering: In overleg
– Vrijstaande woning op mooie locatie
– Achtertuin aan het water, gelegen op het zuidwesten
– VVE parkkosten € 700,- per jaar
– Op loopafstand van de haven

